
طراحی داخلی آپارتمان نگین اثر رضا مفاخر
شرکت معماری: زما آرکیتکسی
معمار: رضا مفاخر
مدیر پروژه: مونا بیکایی
همکار طراحی: مونا بیکایی
مدیر اجرا: سلمان طبسی
کنترل کیفی: ضیا مفاخر
همکاران اجرایی: سارا عنبری، مریم شهرستانی، مارال وثوقی
کارفرما: آقای میرحجازی
آدرس: ایران، تهران.
زیربنا: 130 مترمربع
تاریخ شروع پروژه: اردیبهشت ۱۳۹۹
تاریخ پایان پروژه: آذر ۱۴۰۰
عکاس پروژه: محمدحسن اتفاق
در این مقاله و به طراحی دکوراسیون داخلی منزل می پردازیم که امروزهه بسیار مورد استقبال و توجه قرار گرفته است. این مقوله در زندگی مدرن و آپارتمان نشینی امروزی و با توجه به محدودیت های فضایی موجود در محل های زندگی از اولویت های ساخت و ساز قرار گرفته است. پروژه ای که قصد معرفی آن را در ایبن مقاله داریم مربوط به فضای داخلی آپارتمانی در تهران است که به سبک مدرن طراحی شده است.
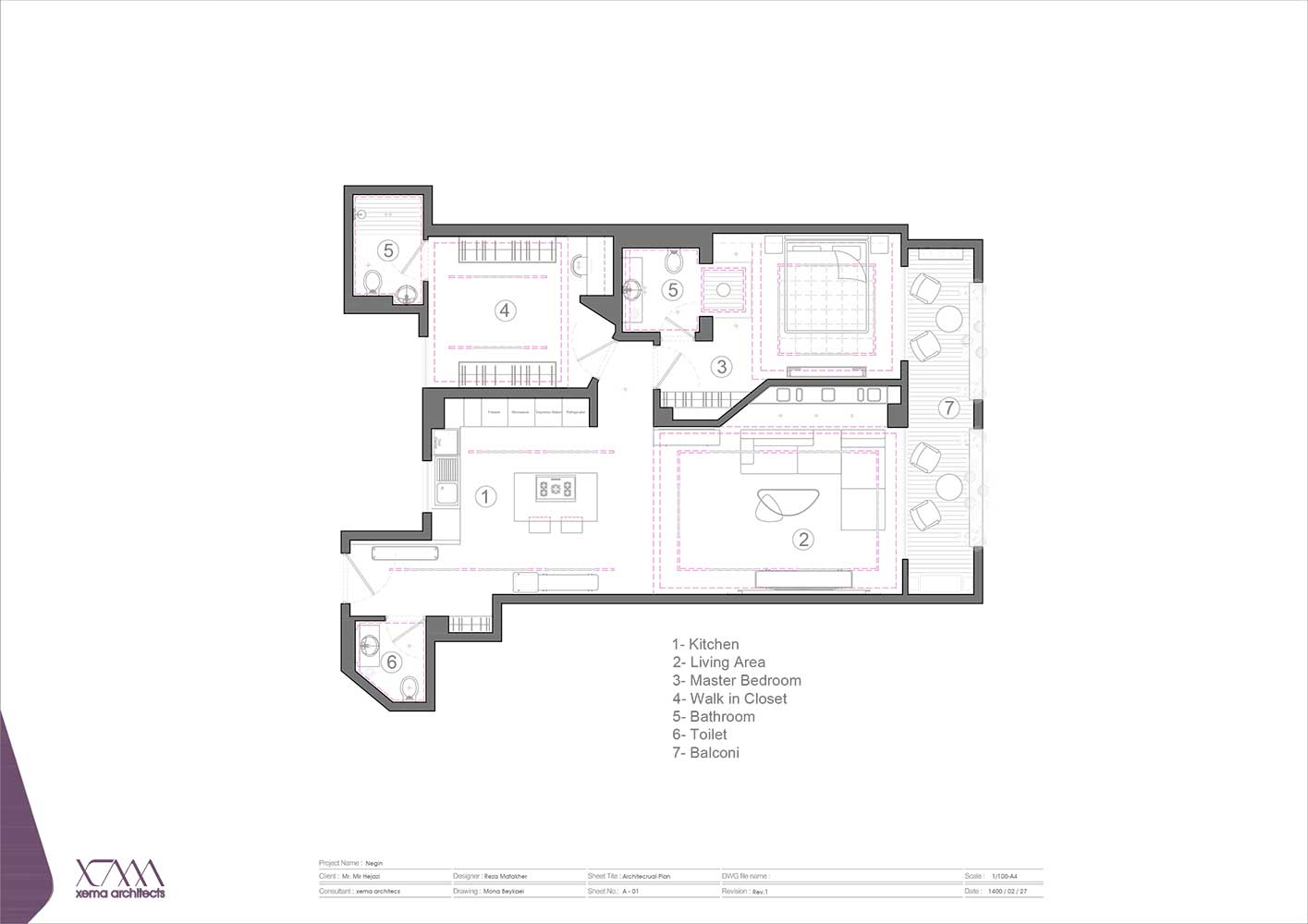
پلان و تغییرات لازم
شروع پروژه نگین به واسطه آشنایی کارفرمای پروژه با پروژه قبلی شرکت زما در کیش بوده است. بنابراین سفارش طراحی یک واحد مدرن به دفتر زما ارجاع داده شده است. با توجه به روحیه و سلیقه کارفرما که این تیم طراحی از قبل با آن آشنایی کافی داشته اند، کانسپت طراحی، پروژه ای با خط و خطوط شارپ و رنگ های خنثی در کنار توجه به جزییات در نظر گرفته شده است و مشابه سایر طرح های شرکت زما، پروژه به صورت دو پوسته طراحی و اجرا شده است. با اینکه ساختمان پروژه نگین، نوساز بود، در مرحله اول اصلاحاتی در پلان و دیوار چینی پروژه انجام شده و نتیجه آن، تغییر در ابعاد اتاق مستر، اتاق مهمان و پذیرایی می باشد که طبق آن:
اتاق مستر، ابعاد مناسب تری پیدا کرد، سرویس اتاق مستر با این تغییرات ابعادی به گونه ای طراحی شد که ارتباط موثرتری با اتاق خواب داشته باشد. بخش دوش به فرم یک مکعب شفاف شیشه ای از محدوده سرویس جدا و به سمت سرویس خواب کشیده شد. اتاق مهمان به صورت دو منظوره و شامل اتاق خواب و اتاق لباس در نظر گرفته شده است.
آشپزخانه و تراس
در طراحی فضای آشپزخانه با اعمال تغییراتی نسبت به حالت اولیه، تمرکز عملکردی به سمت جزیره کشانده شد و جزیره به عنوان نقطه عطف در قالب یک آبجکت طراحی و ساخته شد و جداره های محدود آشپزخانه، فضای کافی برای قرارگیری تجهیزات مورد نیاز را پیدا کردند. این تغییرات تا چیدمان و تغییر در ساختار سرویس های بهداشتی نیز کشیده شده است.
قرارگیری یک تراس سرتاسری خطی در ضلع جنوب، فرصت مناسبی برای ایجاد یک فضای نیمه باز که فضای داخلی و فضای خارجی را به هم متصل می کرد، ایجاد کرده بود، از این رو، طراحی جداره خارجی تراس و اصلاح میزان نورگیری و دید به سمت داخل در کنار طراحی فضای سبز، سبب ایجاد فضایی مناسب برای دورهمی های شبانه گردید.
در ادامه خط معمار شما را به دیدن سایر تصاویر از پروژه طراحی داخلی آپارتمان نگین اثر رضا مفاخر دعوت می نماید.
- دکوراسیون داخلی آپارتمان مسکونی
- دکوراسیون داخلی آپارتمان مسکونی
- دکوراسیون داخلی آپارتمان مسکونی
- دکوراسیون داخلی آپارتمان مسکونی
- دکوراسیون داخلی آپارتمان مسکونی
- دکوراسیون داخلی آپارتمان مسکونی
- دکوراسیون داخلی آپارتمان مسکونی
- دکوراسیون داخلی آپارتمان مسکونی
- دکوراسیون داخلی آپارتمان مسکونی
- دکوراسیون داخلی آپارتمان مسکونی
- دکوراسیون داخلی آپارتمان مسکونی
- دکوراسیون داخلی آپارتمان مسکونی
- دکوراسیون داخلی آپارتمان مسکونی
پلان ها، دیاگرام، سکشن و غیره.
- پلان های دکوراسیون داخلی مسکونی
- پلان های دکوراسیون داخلی مسکونی
تحریریه خط معمار
نگارنده: ماریه عطایی
شرکت معماری آوگون
منبع: aoapedia
تعداد بازدید: 1,014



















