
معماری ساختمان مسکونی گوشه / دفتر معماری آردیسا
ساختمان مسکونی گوشه
دفتر معماری آردیسا
معماران اصلی: رضا عبادی
همکاران طراحی: نسرین امیدی – علی رحمانی – مرتضی عبادی – فاطمه زرینه
مساحت:۳۷۶متر مربع
تاریخ شروع: ۱۳۹۸
تاریخ پایان: ۱۴۰۰
عکاسی: آیدین شاهی – دفتر معماری آردیسا
شرح پروژه:
معماری ساختمان مسکونی گوشه در انتهای یک کوچه بن بست قرار گرفته است، که زمین تودلی یا به اصطلاح پشت قواره می باشد. کوچه ای که به میدانی سرسبز (میدان ۵۱ نارمک) منتهی می شود.
این گونه زمین ها به دلیل بَر کم و قرار گیری در پشت زمین های دیگر معمولا ارزش کمتری نسبت به همسایگان خود دارند، از طرفی دیگر، به درخواست کارفرمای پروژه طراحی این ساختمان شامل چهار واحد ۲۴۰ متری است، این واحد های مسکونی چهار خوابه با مساحتی که عنوان شد نسبت به متواسط متراژهای منطقه از مساحت نسبتا بزرگی برخوردار است که مشتریان خاص خود را دارد.
یکی از عوامل تاثیر گذار در طراحی این ساختمان، همسایگی قدیمی در یکی از کوچه های این میدان است که ساختمانی آجری دو طبقه با معماری ارزشمند، از دهه های گذشته است، که همچنین به صورت مستقیم درپروژه قبلی این دفتر که در این میدان قرار دارد نیز نقش مهمی داشت و از ابتدا مورد توجه طراح و کارفرمای این پروژه قرار گرفته بود. ترکیب ساده حجم های آجری و حیاطی در میانه این ساختمان …..
انتخاب آجر به عنوان پوشش نهایی تجربه ای در راستای پروژه قبلی طراحان این پروژه، و رابطه آن با این همسایه قدیم می باشد. شرایط قرارگیری زمین از طرفی و بزرگ بودن نسبی واحد ها، دوگانه ای بود که از ابتدای طراحی مسئله مهمی در نظر گرفته شده. در این پروژه، طراح به دنبال راهی برای حل این تناقض بوده است. اینکه با چه راهکاری بتواند در چنین زمینی ارزش افزوده ای نسبی ایجاد کند و محدودیت های زمین با بر کم در جداره شهری را، به ساختمانی با حضور پررنگ تر در انتهای کوچه بن بست تبدیل کند.
به این منظور در انتهای کوچه قبل از ورود به ساختمان فضای نیمه بازی ایجاد شده که فضایی واسط بین ساختمان، کوچه و همسایه ها است و هچنین با ایجاد این فضا نمایش عرض ساختمان در طبقه همکف میسر شده است. در اولین نگاه به انتهای کوچه نمایی شاخص با حفظ سادگی بصری که بیانگر حضور محترمانه این ساختمان در کنار همسایه ها باشد، ایجاد شده است.
حذف پنجره ها از روی جداره غربی نما و قرارگیری آنها پشت شبکه ایی آجری راهکاری دو منظوره برای ایجاد نمایی یونیک و شاخص و تعریف حریم فضای داخلی است. ایجاد شکاف روی این نما به تداوم نمای جانبی در سطح خود کمک شایانی کرده است، که در طبقه همکف به نیم قوس ورودی در انتهای کوچه ختم می شود.
یکی دیگر از مواردی که در پروژه معماری ساختمان مسکونی گوشه تجربه شد، مسئله فضای سبز و فضا های جمعی در ساختمان و در مقیاس همسایگی است. به این منظور فضایی که در شمال ساختمان در طبقه همکف ایجاد شده، تعامل بین ساکنین ساختمان و همسایه ها را فراهم کرده است، و در بام ساختمان دو آلاچیق به همراه فضای سبز، محلی برای معاشرت ساکنین ساختمان فراهم ساخت.ایحاد شده است.
در ادامه خط معمار شمارا به دیدن تصاویر بیشتر از پروژه مسکونی گوشه دعوت می نماید.
- طراحی معماری مسکونی
- طراحی معماری مسکونی
- طراحی معماری مسکونی
- طراحی معماری مسکونی
- طراحی معماری مسکونی
- طراحی معماری مسکونی
- طراحی معماری مسکونی
- طراحی معماری مسکونی گوشه
- طراحی معماری مسکونی گوشه
- طراحی معماری مسکونی گوشه
- طراحی معماری مسکونی گوشه
- طراحی معماری مسکونی گوشه
- طراحی معماری مسکونی
- طراحی معماری مسکونی
- طراحی معماری مسکونی
- طراحی معماری مسکونی
- طراحی معماری مسکونی
- طراحی معماری مسکونی
- طراحی معماری مسکونی گوشه
- طراحی معماری مسکونی گوشه
- طراحی معماری مسکونی گوشه
- طراحی معماری مسکونی گوشه
- طراحی معماری مسکونی گوشه
- طراحی معماری مسکونی گوشه
- طراحی معماری مسکونی گوشه
- طراحی معماری مسکونی گوشه
- طراحی معماری مسکونی گوشه
- طراحی معماری مسکونی گوشه
- طراحی معماری مسکونی گوشه
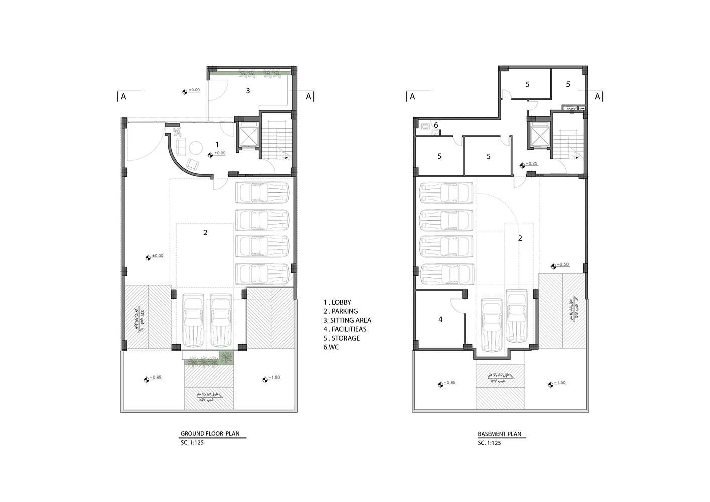
پلان ها، دیاگرام، سکشن و غیره.
- پلان های معماری مسکونی گوشه
- پلان های معماری مسکونی گوشه
- پلان های معماری مسکونی گوشه
- پلان های معماری مسکونی گوشه
- پلان های معماری مسکونی گوشه
- پلان های معماری مسکونی گوشه
- پلان های معماری مسکونی گوشه
- پلان های معماری مسکونی گوشه
- پلان های معماری مسکونی گوشه
- پلان های معماری مسکونی گوشه
- پلان های معماری مسکونی گوشه
تحریریه خط معمار
نگارنده: ماریه عطایی
شرکت معماری آوگون
منبع: aoapedia.ir
تعداد بازدید: 1,431












































