
ساختمان اداری و سایت تولیدی شرکت دارویی سیناژن
نام پروژه: ساختمان اداری و سایت تولیدی شرکت دارویی سیناژن
معماران: ساناز قائم مقامی، مجتبی محمد ظاهری
موقعیت پروژه: ایران، کرج، سیمین دشتی
مساحت:: 20177 مترمربع
تیم طراحی: ندا شاهجویی، مهیار جاویدان، فرزانه نوروزی، نیلوفر مرادی، پرتو هدایتی، آراز اسماعیلی، کامیار صلواتی
طراحی سازه: داوود زارعیی
مهندس مکانیک: علیرضا فرساد
مهندس الکترونیک: محسن نعمتی
مدیر اجرا: آرش لاهوتیی
عکاس: آیدین شاهی
در این بخش معرفی پروژه ای بزرگ را در نظر داریم که متعلق به ساختمان اداری و بخش تولید شرکت داروسازی سیناژن است. این مجموعه در شهر کرج واقع شده است و متریال اصلی ساختمان آن را آجر و فلز تشکیل داده است.
حجم های مجزا و متصل
این مجتمع دوگانه با مساحت کلی ۲۰.۰۰۰ مترمربع برای پاسخگویی به نیازهای دفتر مرکزی شرکت بیو دارویی سیناژن طراحی شده است. این مجموعه از دو حجم مجزا و در عین حال متصل به شرح زیر تشکیل شده است:
- یک ساختمان آجری گرم، دنج و قهوه ای رنگ به عنوان بخش اداری با باغچههای کوچک داخلی برای هر دفتر
- و دوم ساختمانی، که با سطح طرح دار سفید، به بخش تولیدی اختصاص دارد
این دو حجم با پل های پیاده روی متفاوت در قسمت های مختلف دو ساختمان به یکدیگر متصل شده اند. چالش این پروژه طراحی کارخانه ای متشکل از فضاها و عملکردهای مختلف درهم تنیده بوده است. این کارکردها شامل فضاهای تولیدی، انباری، امکانات فنی، فضاهای اداری، دفاتر و آزمایشگاه ها میشود.
فضاهای عملکردی
این فضاها باید در مجموعه ای از حجم های مختلف باز، بسته و نیمه بسته ادغام می شدند. راه حل در نظر گرفته شده برای حل این چالش، این بوده که سه توده مختلف را با سه نقش عملکردی متفاوت پیوند داده شوند:
- یک توده برای امکانات فنی
- یک توده برای فضاهای تولید،عملکردهای حمایتی و انبارها
- و در نهایت یک توده شامل آزمایشگاه ها، دفاتر و عملکردهای اداری
این توده ها بعدها توسعه یافتند. تاسیسات و توده های تولیدی به صورت یک مکعب سفید بزرگ با پوسته ای نیمه شفاف طراحی شدند. انبوه کارکردهای اداری بر روی یک مکعب شیشه ای قرار دارد و با سقف بلندش لابی را شکل می دهد. سپس یک حجم آجری ظریف روی مکعب شیشه ای قرار گرفته است و فضاهای باز سبزی برای کارمندان و کارگران ایجاد کرده تا در آن از سر سبزی درختان مرتفع مجتمع لذت ببرند.
در ادامه خط معمار شما را به دیدین سایر تصاویر از پروژه ساختمان اداری و سایت تولیدی شرکت دارویی سیناژن دعوت می نماید.
- طراحی ساختمان اداری و سایت تولیدی داروسازی
- طراحی ساختمان اداری و سایت تولیدی داروسازی
- طراحی ساختمان اداری و سایت تولیدی داروسازی
- طراحی ساختمان اداری و سایت تولیدی داروسازی
- طراحی ساختمان اداری و سایت تولیدی داروسازی
- طراحی ساختمان اداری و سایت تولیدی داروسازی
- طراحی ساختمان اداری و سایت تولیدی داروسازی
- طراحی ساختمان اداری و سایت تولیدی داروسازی
- طراحی ساختمان اداری و سایت تولیدی داروسازی
- طراحی ساختمان اداری و سایت تولیدی داروسازی
- طراحی ساختمان اداری و سایت تولیدی داروسازی
- طراحی ساختمان اداری و سایت تولیدی داروسازی
- طراحی ساختمان اداری و سایت تولیدی داروسازی
- طراحی ساختمان اداری و سایت تولیدی داروسازی
- طراحی ساختمان اداری و سایت تولیدی داروسازی
- طراحی ساختمان اداری و سایت تولیدی داروسازی
- طراحی ساختمان اداری و سایت تولیدی داروسازی
- طراحی ساختمان اداری و سایت تولیدی داروسازی
- طراحی ساختمان اداری و سایت تولیدی داروسازی
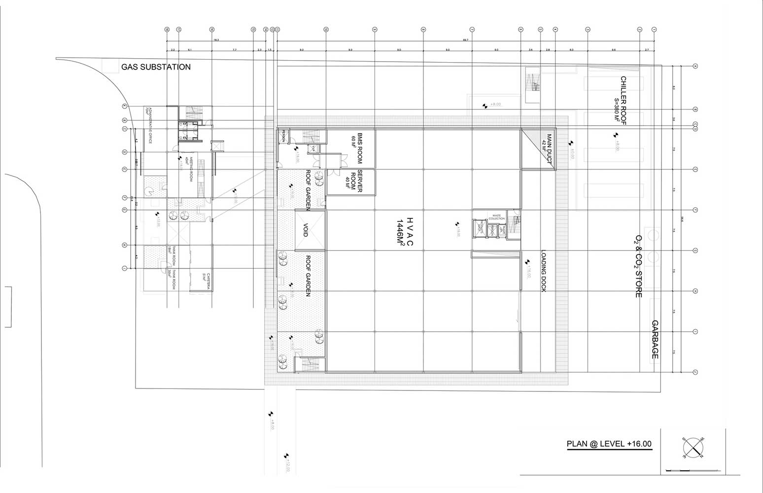
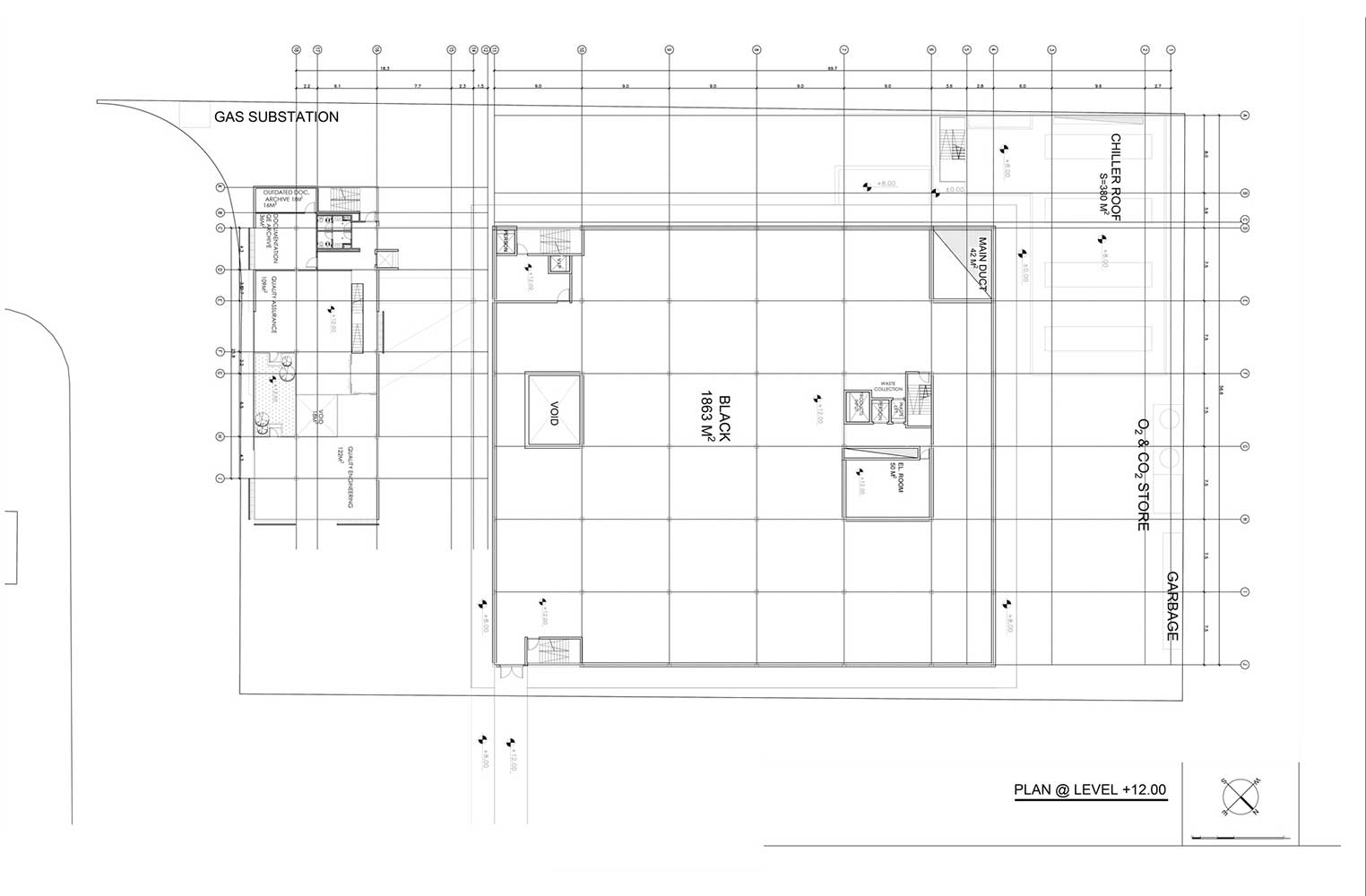
پلان ها، دیاگرام، سکشن و غیره.
- طراحی ساختمان اداری و سایت تولیدی داروسازی
- طراحی ساختمان اداری و سایت تولیدی داروسازی
- طراحی ساختمان اداری و سایت تولیدی داروسازی
- طراحی ساختمان اداری و سایت تولیدی داروسازی
- طراحی ساختمان اداری و سایت تولیدی داروسازی
- طراحی ساختمان اداری و سایت تولیدی داروسازی
تحریریه خط معمار
نگارنده: ماریه عطایی
شرکت معماری آوگون
منبع: aoapedia
تعداد بازدید: 664





























