
معماری و طراحی داخلی ویلای بی نهایت + پلان و اسکیس و ماکت
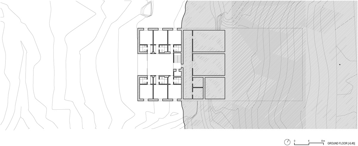
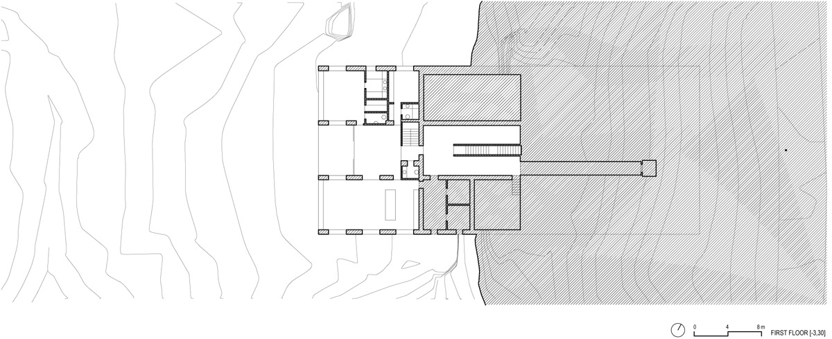
معمار اسپانیایی، آلبرتو کامپا بازا، ساخت خانه ای مسکونی و منفرد را بر لبه ی اقیانوس اطلس به پایان رسانده است. این اثر با الهام از دریای بی پایان امتداد یافته در مقابلش، با نام " خانه ی بی کران " شناخته شده و از یک پودیوم تشکیل شده که یک صفحه ی افقی در بالای آن قرار گرفته است.
این خانه که چرخیده است تا در مقابل افق جای گیرد؛ همچون اسکله ای ست از سنگ تراورتن رومی که زیبایی ساحل شنی را تکمیل می کند. این ساختار، از یک سازه ی مکعبی شکل با ۲۰ متر عرض و ۳۶ متر عمق، در دو طبقه تشکیل شده است که از داخل سنگی سخت تراشیده شده است.
بخش اتصال خانه به خیابان، بیشتر بر ابعاد این پلت فرم تاکید می نماید و دسترسی به داخل خانه را از طریق پلکانی حفر شده در پودیوم آن، میسر می سازد. بخش بالایی طرح با سه دیوار در اطراف، ساکنانش را از بادهای غالب و قوی این محیط، محافظت می نماید.
برای بزرگنمایی بر روی تصاویر کلیک کنید.
تعداد بازدید: 3,114



