
معماری خانه پیشوا ، دفتر معماری علی حقیقی

طراحی ساختمان مسکونی
خانه پیشوا
معماری: علی حقیقی
معمار مسئول: مجید ایزدیار
موقعیت: ایران
مساحت: ۴۵۰ متر مربع
مهندس عمران: محمدرضا کامیاب
مشاور مکانیکی: مهدی محیاری
مشاور الکتریکی: سارا رمضانی
سازه: اکبر رحیمی
گرافیک: محمد مهدی زمانی
عکاس: محمد حسن اتفاق
سال: ۱۴۰۰
شرح پروژه
پروژه معماری خانه پیشوا در شهری کوچک در نزدیکی تهران، پایتخت ایران واقع شده است. کارفرما میبایست در ارتباط با فروش زمین خود تصمیم می گرفته تا بتواند به پایتخت مهاجرت کند و خانه ای دائمی بسازد. خانه ای که خانواده بتواند علاوه بر ایجاد آرامش، شیوه متفاوتی از زندگی را تجربه کند. هدف اصلی در فرآیند طراحی این پروژه، ایجاد یک ارتباط متمایز بین خانه و همسایگان آن بوده است. به عبارت دیگر، چگونگی درک آن در همسایگی و چگونگی مشارکت آن در تصویر شهری وجه تمایز معماری خانه پیشوا می باشد. این خانه در مرز جدایی و ارتباط با محیط پیرامونش طراحی شده است. «چه چیزی دیده می شود و چگونه دیده می شود؟»
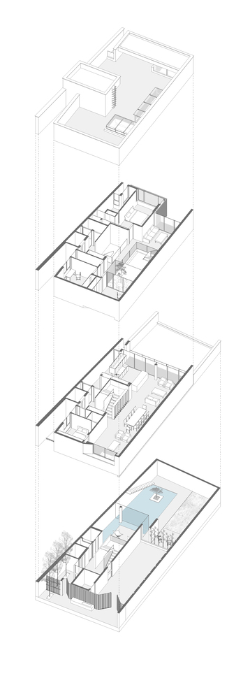
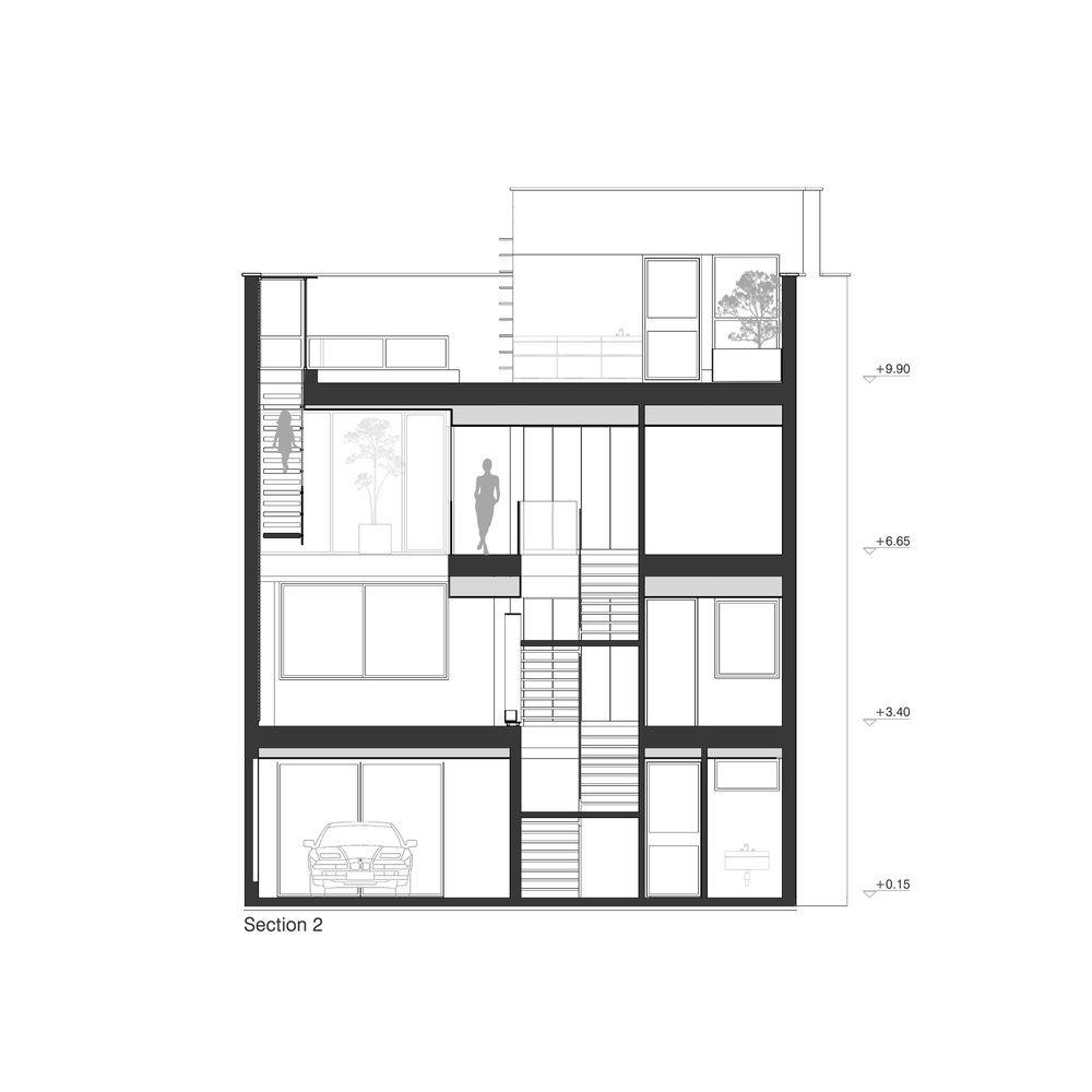
در شرایطی که فقدان استانداردهای نظارتی موجب ایجاد آشفتگی در چهره شهری شده است، رویکرد طراح، ایجاد تعادل بصری مطلوب در عین عدم کمک به اختلال ذکر شده است. از سوی دیگر، تمایل کارفرما به داشتن بیشترین حریم خصوصی علاوه بر حضور محترمانه در میان ساختمانهای مجاور، منجر به نوعی طراحی با تاکید بر سادگی و درونگرایی شده است. بنابراین، دید مستقیم خیابان تنها با یک پنجره به حداقل رسیده است، ضمن اینکه با اهدای بخشی از زمین به پیاده رو و ایجاد حیاط در ورودی خانه، توجه بیشتری را به خود جلب کرده است. سلسله مراتب ساختمان با سکوی نشیمن کنار در ورودی آغاز می شود. در ادامه حیاط در ورودی، به فضایی می رسیم که به بازدیدکنندگان خوشامد می گوید. فضایی در مجاورت استخر که با صدای آب همراه است.
طبقه اول برای پذیرایی از مهمانان طراحی شده است در حالی که طبقه دوم کاملاً به حریم خصوصی خانواده تعلق دارد. حیاط طبقه همکف به منظره ای خلوت و آرامش بخش با استخر و حیاط کوچک تبدیل شده است، در حالی که پشت بام با بهره گیری از فضای ایجاد شده توسط ارتفاع جان پناه، تبدیل به حیاط کاربردی خانه شده است. به همین دلیل آسانسور و همچنین پله هایی که از اهمیت ویژه ای برای مرکز فضای داخلی برخوردارند، تا پشت بام خانه بالا رفته اند. نورگیره قرار گرفته بر روی پله های دسترسی به پشت بام، باعث افزایش میزان نور طبیعی در فضاهای عمومی شده و در عین حال مناظر متنوعی با نور و سایه ایجاد کرده است. این نورگیر، علاوه بر ویژگی های ذکر شده، نور مستقیم و هوای تازه را به اتاق خواب کوچک ترین کودک نیز می رساند.
طراح این پروژه، با همین دقت و توجه به نمای اصلی، نماهای جانبی موقت و نمای شمالی متروک همسایه جنوبی توجه کرده است. تمام نماها با سیمان سفید پوشانده شده و به دلیل مسائل مالی، پوشش نهایی به آینده موکول شده است. خانه پیشوا از پاسخگویی به خواسته های مشتری فراتر رفته و با سادگی موقر نقطه عطفی برای زمین و ارزش آن شده است.
در ادامه خط معمار شما را به دیدن سایر تصاویر معماری خانه پیشوا دعوت می نماید.
- خانه پیشوا
- خانه پیشوا
- خانه پیشوا
- خانه پیشوا
- خانه پیشوا
- خانه پیشوا
- خانه پیشوا
- خانه پیشوا
- خانه پیشوا
- خانه پیشوا
- خانه پیشوا
- خانه پیشوا
- خانه پیشوا
- خانه پیشوا
- خانه پیشوا
- خانه پیشوا
- خانه پیشوا
- خانه پیشوا
- خانه پیشوا
- خانه پیشوا
- خانه پیشوا
پلان ها، دیاگرام، سکشن و غیره.
- پلان ساختمان مسکونی
- پلان ساختمان مسکونی
- پلان ساختمان مسکونی
- پلان ساختمان مسکونی
- پلان ساختمان مسکونی
- پلان ساختمان مسکونی
- پلان ساختمان مسکونی
- پلان ساختمان مسکونی
- پلان ساختمان مسکونی
- پلان ساختمان مسکونی
- پلان ساختمان مسکونی
- پلان ساختمان مسکونی
تحریریه خط معمار
نگارنده: عطایی
شرکت معماری آوگون
منبع: Archdaily
تعداد بازدید: 2,622




































