
طراحی معماری ساختمان مسکونی VOID
معماری ساختمان مسکونی VOID / استودیو پوستی
معماران: استودیو پوستی
معمار اصلی : مریم پوستی
مهندسین سازه: مهندس سجادیان
عکس ها: پرهام تقیوف، استودیو دید
مساحت: ۱۹۴۷ متر مربع
سال: ۲۰۲۱
موقعیت: تهران، ایران
شرح پروژه:
در حدود ۴ دهه، با بازسازی شدید، تهران از شهری با باغ های بینهایت و خانه های تک خانوارش به شهری با بلوک های آپارتمانی بینهایت تبدیل شده است. این مسئله تغییر قابل توجهی را در سبک زندگی، در این بافت شهری بوجود آورده است. و بر مسائلی مانند مالکیت مشترک، حریم خصوصی، ایمنی، قلمرو، حافظه جمعی و مهمتر از همه، کیفیت فضای زندگی تأثیر گذاشته است. طرح های فعلی تهران عمدتاً توسط توسعه دهندگانی ساخته می شوند که معیار های اصلی آن ها سهولت ساخت، راحتی و هزینه است. که کیفیت محیط را به خطر میاندازد. این رویکرد، کلان شهری را شکل داده است که هیچ ریشه یا داستانی برای گفتن ندارد. چالش اصلی پروژه طراحی معماری ساختمان مسکونی VOID این است که چگونه معماری میتواند راههای زندگی جایگزین را به تصویر بکشد و به انتقال از خانه های تک خانواری به ساختمان های آپارتمانی بپردازد.
طراحی معماری ساختمان مسکونی VOID اولین طرح مسکونی مریم پوستی است. که در آن تلاش کرده جایگزینی برای مدلهای متعارف سکونت و زندگی شهری متراکم ارائه کند، که منجر به ایجاد پوششهای بسته ساختمانی شده است و فاقد گفتوگو با بافت خود هستند.
ساختمان VOID که در یک سایت بسیار باریک واقع شده است از ۱۰ واحد در ۵ طبقه تشکیل شده است. ویژگی بارز این پروژه، یک فضای خالی صمیمی است که به صورت استراتژیک در نمای شمالی حک شده است تا ساختمان را با حاشیه آن درگیر نماید. انبوه شدن فضای خالی جریانی عمودی بین خط افقی ساختمان و پاهای آن ایجاد کرده است. ورودی اصلی با اهمیت خاصی تعریف شده است. زمانی عمودی بودن فضای خالی به یک صفحه افقی تبدیل شده که ۲۰ متر در طول ساختمان کشیده شده است. این سکوی افقی سطح خیابان را به باغ پشتی متصل کرده است و امکان فعالیت های جمعی در محله را ایجاد کرده است.
در اینجا هدف تعریف مجدد قلمرو ساختمان و جذب یک خانه تک خانواده است که بدون دخالت مرزهای سفت و سخت به محیط اطراف خود گسترش یافته. چیدمان داخلی ساختمان یک ارتباط ساختاری و حجمی عمیق را با نما نشان می دهد. حجمهای کنار هم از فضای خالی از طریق تغییر دیدگاهها، بازیگوشی را ارائه کرده اند و اجازه داده اند مرزهای داخلی و خارجی به طور همزمان تجربه شوند. پنهان کاری بین درون و بیرون از طریق تعامل بین پر و خالی، مفاهیم چالش برانگیز قرار گرفتن در معرض و حریم خصوصی صورت را صورت داده است. در هر طبقه دو واحد وجود دارد. ایجاد سر و صدا و نیروهای محرک حریم خصوصی در موقعیت یک راه پله مستطیل شکل، که به عنوان یک بافر برای جلوگیری از تماس صوتی و بصری مستقیم بین واحدها عمل کرده است.
در اطراف هر واحد یک بالکن صمیمی قرار دارد که به عنوان یک باغ داخلی در نظر گرفته شده است. ترتیبی برای مواد و سلسله مراتبی از تکمیل و بافت دیده می شود، که ارزش کار با صنعتگران را تجلیل می کند. این امر در الگوی سیمانی افقی شانه شده نما مشهود است که به عنوان رسانای آب باران نیز عمل می کند و پوست ساختمان را تمیز نگه می دارد. دستگیره درها، نرده ها، وسایل روشنایی و کابینت ها به طرز ماهرانه ای در جزئیات معماری ساختمان ادغام شده اند. همکاری با سازندگان با پیشینه های مختلف در این پروژه یادآور این نکته است که ساختمان ها محصول تعامل و زمان شدید هستند.
در ادامه خط معمار شما را به دیدن تصاویر بیشتر از معماری مسکونی ساختمان VOID دعوت می نماید.
- طراحی معماری مسکونی
- طراحی معماری مسکونی
- طراحی معماری مسکونی
- طراحی معماری مسکونی
- طراحی معماری مسکونی
- طراحی معماری مسکونی
- طراحی معماری مسکونی
- طراحی معماری مسکونی
- طراحی معماری مسکونی
- طراحی معماری مسکونی
- طراحی معماری مسکونی
- طراحی معماری مسکونی
- طراحی معماری مسکونی
- طراحی معماری مسکونی
- طراحی معماری مسکونی
- طراحی معماری مسکونی
- طراحی معماری مسکونی
- طراحی معماری مسکونی
- طراحی معماری مسکونی
- طراحی معماری مسکونی
- طراحی معماری مسکونی
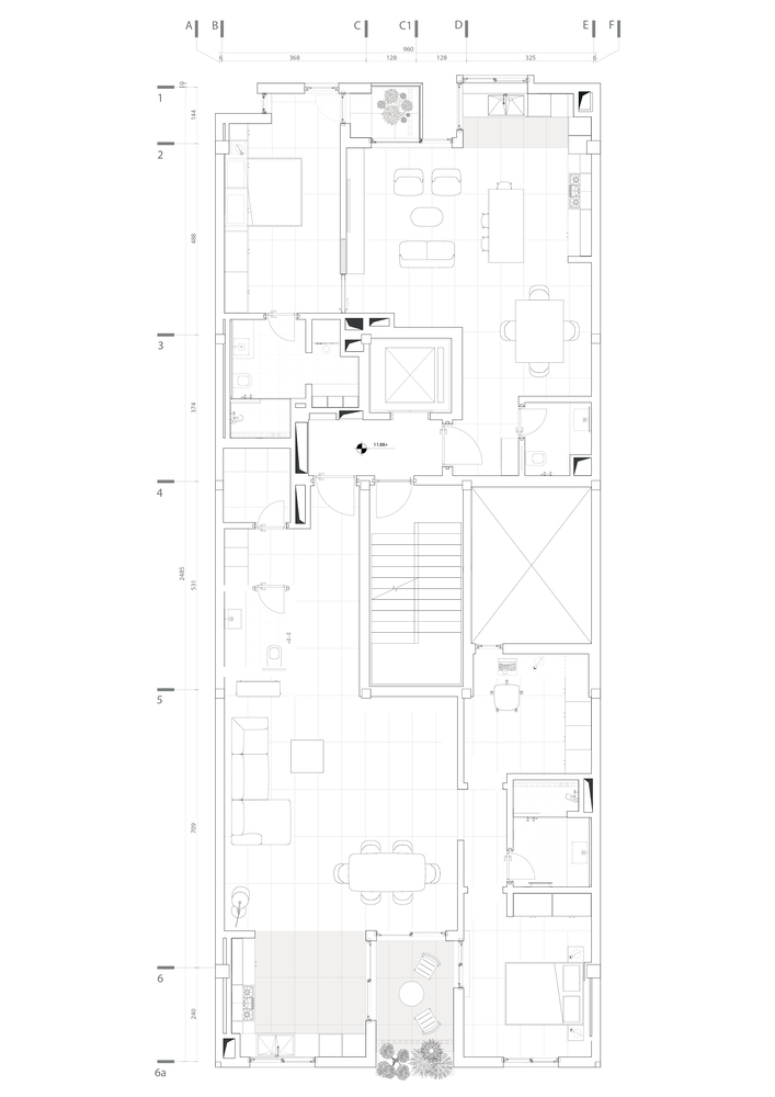
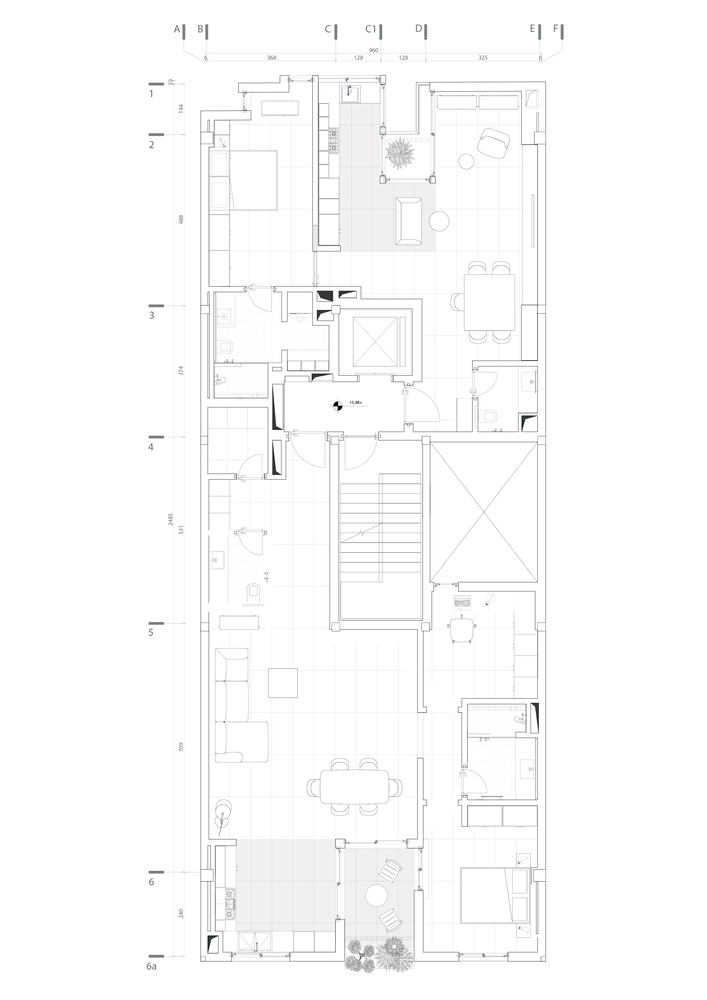
پلان ها، داگرام، سکشن و غیره.
- پلان های ساختمان مسکونی
- پلان های ساختمان مسکونی
- پلان های ساختمان مسکونی
- پلان های ساختمان مسکونی
- پلان های ساختمان مسکونی
- پلان های ساختمان مسکونی
- پلان های ساختمان مسکونی
- پلان های ساختمان مسکونی
- پلان های ساختمان مسکونی
- پلان های ساختمان مسکونی
- پلان های ساختمان مسکونی
- پلان های ساختمان مسکونی
- پلان های ساختمان مسکونی
- پلان های ساختمان مسکونی
تحریریه خط معمار
نگارنده: ماریه عطایی
شرکت معماری آوگون
منبع: Archdaily
تعداد بازدید: 849







































