
طراحی معماری ساختمان اداری ویرا، دفتر معماری شهاب علیدوست

طراحی معماری ساختمان اداری ویرا
معماری: شهاب علیدوست و شرکا
مساحت: ۲۰۳۵ متر مربع
موقعیت: ایران، تهران
معماران مسئول: شهاب علیدوست، سونا افتخاراعظم
تیم طراحی: حمیده رئوف زاده، سهند محدث، حامد بختیاری، علی تقی بیگی، ایلیا سالک، سما ساکی، مینا مهرداد، آیدا احسانی، ونوس انتظامی،علی ایزدی، احسان داننده
دستیار طراحی: امیر نیک نفس
مدیر اجرایی: حانیه جهانگیری
مهندس سازه: آرش تدین
عکاس: محمد حسن اتفاق
سال: ۱۴۰۰
شرح پروژه:
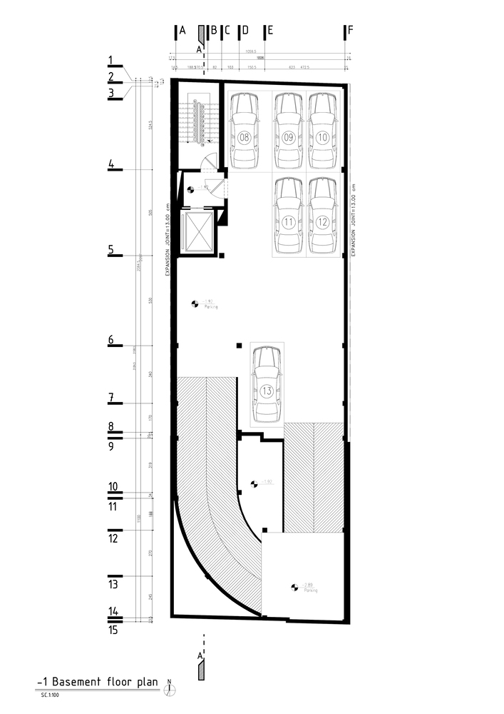
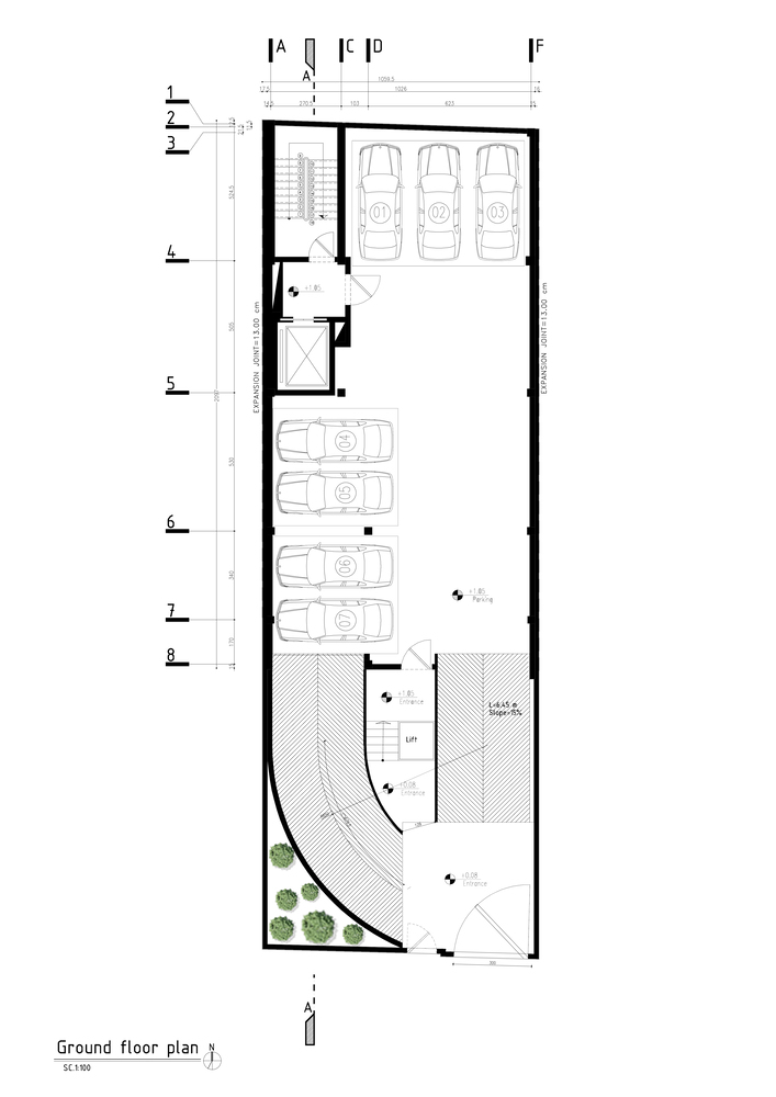
طراحی معماری ساختمان اداری ویرا از نمونه های بارز طراحی تعاملی نمای ساختمانی در انطباق با گونه شناسی غالب بافت شهری است. این پروژه در مرکز شهر تهران، محله یوسف آباد واقع شده است. این محله از مناطق بسیار مهم و با ارزش شهر تهران شناخته می شود چرا که دارای موقعیت اداری_مسکونی می باشد. ساختمان اداری ویرا دارای مساحت ۳۴۰ متر مربع، و مساحت ناخالص ۲۰۳۵ متر مربع، شامل دو طبقه زیر زمین و یک طبقه همکف با کاربرد پارکینگ و شش طبقه با کاربرد اداری است. که مساحت مفید در هر طبقه ۱۸۰ متر مربع می باشد.
مشکل اصلی در طراحی این پروژه، از یک سو مجاورت با ساختمان های قدیمی در ضلع غربی و از طرف دیگر همسایگی با یک ساختمان مدرن و بلندمرتبه در قسمت شرقی در چگونگی برخورد با این موضوع است. هماهنگی با دو مجاورت، هم از نظر عملکرد و هم از نظر شکل و مقیاس متفاوت است. همسایگان غربی این پروژه عمدتا ساختمان های ۳ و ۴ طبقه با کاربرد مسکونی هستند که در کلان شهر تهران، از نظر فرم به عنوان سازه های کوچکی تلقی می شوند که از ظوابط شهرداری تبعیت می کنند. به عبارت دیگر، این بناها در انطباق کامل با گونه شناسی غالب بافت شهری تهران ساخته شده اند. در ضلع شرقی اما، شاهد مجاورت با ساختمانی مرتفع و مدرن با کاربردی اداری_تجاری هستیم، که از منظر مقیاس، عملکرد و فرم، متفاوت از همسایگان غربی است.
چالش اصلی تیم طراحی ساختمان اداری ویرا در برخورد با مشکل فوق، وجود یک مورب تحمیل شده در سمت غرب و مغایرت فرمی از جهت گونه شناسی مرتبط با معیارهاست. بنابراین در مفهوم ارائه شده، اریب نه تنها به عنوان یک نقش و موتیف تکراری شهری استفاده شده، بلکه با افزایش حجم فرورفتگی به سمت شرق در قسمت مرکزی نمای ساختمان، قابلیت بالاتری یافته است و به عنوان ابزاری فعال، برای تبدیل صورت دو بعدی به حجمی سه بعدی عمل می کند. استفاده از این رویکرد و تقسیم ساختمان به سه حجم همپوشانی، منجر به هم جواری بهتر با همسایگان غربی از منظر مقیاس شده است. علاوه بر این، با استفاده از سطوح شفاف در بخش عمده ای از نمای اصلی ساختمان و همچنین استفاده از بالکن های تکراری با پتانسیل مکان یابی فضاهای سبز، اقدام به ایجاد هماهنگی بهتر با همسایگان شرقی شده است. در مورد مصالح به کار رفته در نمای ساختمان، باید توجه داشت که با توجه به تنوع مصالح در ساختمانهای همسایه، عملکرد رنگ ساختمان با استفاده از رنگهای خنثی و خاکستری در دیوارهای پروژه کاهش یافته است. قسمتهای سفت و سخت نمای جنوبی ساختمان از پنلها و ورقهای فلزی با رنگ روکش خاکستری تیره ساخته شده است. همچنین عناصر عمودی و سایه بان ها به بهبود عملکرد اقلیمی (کنترل نور خورشید جنوب و جنوب غربی) کمک کرده اند. در پایان باید توجه داشت که طراحی معماری اداری ساختمان “ویرا دوم” با حفظ هویت مستقل خود به عنوان یک ساختمان و جلوگیری از بی تفاوت بودن نسبت به چشم انداز شهری تلاش کرده است تا تعاملات مثبتی با دید شهری اطراف خود داشته باشد.
در ادامه خط معمار شما را به دیدن تصاویر معماری ساختمان اداری ویرا دعوت می نماید.
- ساختمان اداری ویرا
- ساختمان اداری ویرا
- ساختمان اداری ویرا
- ساختمان اداری ویرا
- ساختمان اداری ویرا
- ساختمان اداری ویرا
- ساختمان اداری ویرا
- ساختمان اداری ویرا
- ساختمان اداری ویرا
پلان ها، دیاگرام، سکشن و غیره.
تحریریه خط معمار
نگارنده: ماریه عطایی
شرکت معماری آوگون
منبع: Archdaily
تعداد بازدید: 704

























