
طراحی دفتر مرکزی لهستانی صنعتNT
دفتر مرکزی لهستانی صنعت GIGAARCHITEKCI Artur Garbula /NT
شرح پروژه:
مرکز کار جدید شرکت طراحی و تولید فولاد دانمارکی صنعت NT، در ساختمان های یک مجتمع صنایع سنگین قدیمی در شهر اورززه در لهستان، که در سال ۱۹۵۱ ساخته شده است، قرار دارد. این ساختمان در سال ۲۰۰۳ توسط مالک فعلی خریداری شده است. که در میان دیگر ساختمان های صنعتی و فضای سبز پنهان شده است.
طراحی مجدد طراحی دفتر مرکزی لهستانی صنعتNT آن به لطف نما و فرم آن، محیط اطراف را تکمیل می کند. این طراحی به دو مرحله مجزا تقسیم شده است. مرحله اول شامل نوسازی دروازه ورودی است، در حالی که مرحله دوم به دنبال بازسازی ساختمان اداری از کار افتاده و استفاده مجدد تطبیقی از انبار بوده است، که به عنوان یک غذاخوری جدید طراحی شده. یک پاسیو سبز نیز ایجاد شده که فضایی را در وسط مجموعه به خود اختصاص داده است.
ایده اصلی، حفظ مصالح موجود، یافتن راهحلهای طراحی ساده و حفظ هر چه بیشتر سازههای اصلی ساختمان بود. دیوارهای آجری آشکار شدند، راه پلههای موجود با موزاییک های سیمانی مرمر نما بازسازی شدند، در حالی که پنل های فولادی کورتن به کار رفته در نما طراحی شده، از استوک استفاده نشده و از فولاد این شرکت ساخته شده و تماماً توسط کارفرما تولید شده است.
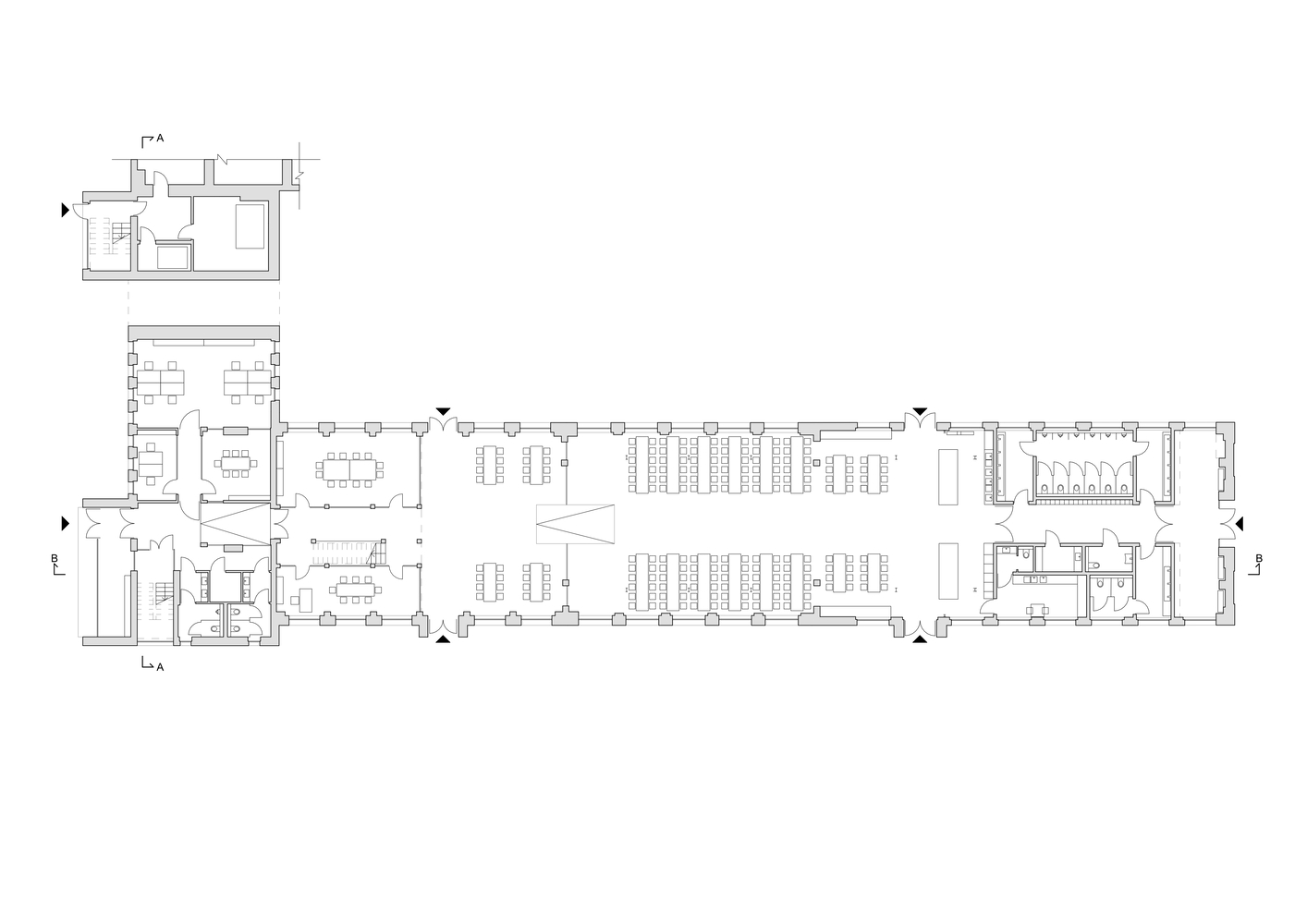
نمای فولادی کورتن آن بر اساس یک پروژه اجرایی تهیه شده توسط معماران برای استفاده اساسی از مواد قدیمی ساخته شده است. بنابراین، ایده ضایعات صفر در طراحی اجرا شده است. دروازه مذکور که هدف مرحله اول بود، محوطه ورودی کل مجموعه را در بر می گیرد و از دو بخش تشکیل شده است: ساختمان شیشه ای برای پرسنل امنیتی با اتاق انتظار رانندگان و پناهگاه دوچرخه. به منظور علامت گذاری نام شرکت از فولاد کورتن نیز استفاده شده است ساختمان اداری مرمت شده بیش از ۷۴۰ متر مربع فضای اداری باز و منعطف را با گیشه های کوچکتر و اتاق های کنفرانس ارائه داده است.
در طراحی دفتر مرکزی لهستانی صنعتNT ،راه پله های مورد استفاده مجدد توسط یک راهرو جدید تکمیل شده است. ورودی ساختمان اداری مستقیماً روبروی غذا خوری جدید است که فضایی برای حداکثر ۲۵۰ نفر فراهم کرده است. طراحی فضایی جدید یک منطقه تفریحی برای کارگران در کنار غذاخوری ایجاد کرده است. از رمپ های موجود برای از بین بردن اختلاف سطوح داخل ساختمان ها استفاده شده است دو درگاه ورودی در نمای شمالی و دو درگاه دیگر در نمای جنوبی طراحی شده است که دسترسی به پاسیو سبز را فراهم کرده.
ورودی ها و راه پله ها با فولاد کورتن پوشانده شده اند. در حالی که بقیه ساختمان ها با رنگ های خنثی سفید و خاکستری حفظ شدند. چیدمان پنجره ها به شکل اصلی خود وفادار مانده و دیوارها و سقف ها ترمومدرنیزه شدند.
فضای داخلی به سبک شیروانی، با آجر، بتن، و نوعی موزاییک سیمانی همراه با عناصر جدید با پوشش سیاه طراحی شده است. دیوار جدا کننده غذاخوری از ساختمان اداری و تمام سقف ها با پانل های آکوستیک ساخته شده، از مواد طبیعی پوشانده شده است. همچنین کانال کشی و جزئیات مهندسی در معرض دید قرار گرفته است و مبلمان ها برای تکمیل سبک مینیمالیستی نگهداری شده اند. بازسازی در مراحل بعدی ادامه خواهد داشت.
در ادامه خط معمار شما را به دیدن تصاویر بیشتر از این پروژه دعوت می نماید.
- طراحی معماری دفتر صنعت NT
- طراحی معماری دفتر صنعت NT
- طراحی معماری دفتر صنعت NT
- طراحی معماری دفتر صنعت NT
- طراحی معماری دفتر صنعت NT
- طراحی معماری دفتر صنعت NT
- طراحی معماری دفتر صنعت NT
- طراحی معماری دفتر صنعت NT
- طراحی معماری دفتر صنعت NT
- طراحی معماری دفتر صنعت NT
- طراحی معماری دفتر صنعت NT
- طراحی معماری دفتر صنعت NT
- طراحی معماری دفتر صنعت NT
- طراحی معماری دفتر صنعت NT
- طراحی معماری دفتر صنعت NT
- طراحی معماری دفتر صنعت NT
- طراحی معماری دفتر صنعت NT
- طراحی معماری دفتر صنعت NT
- طراحی معماری دفتر صنعت NT
- طراحی معماری دفتر صنعت NT
- طراحی معماری دفتر صنعت NT
- طراحی معماری دفتر صنعت NT
- طراحی معماری دفتر صنعت NT
- طراحی معماری دفتر صنعت NT
- طراحی معماری دفتر صنعت NT
- طراحی معماری دفتر صنعت NT
- طراحی معماری دفتر صنعت NT
- طراحی معماری دفتر صنعت NT
- طراحی معماری دفتر صنعت NT
- طراحی معماری دفتر صنعت NT
- طراحی معماری دفتر صنعت NT
- طراحی معماری دفتر صنعت NT
- طراحی معماری دفتر صنعت NT
پلان ها، دیاگرام، سکشن و غیره.
- طراحی معماری دفتر صنعت NT
- طراحی معماری دفتر صنعت NT
- طراحی معماری دفتر صنعت NT
- طراحی معماری دفتر صنعت NT
- طراحی معماری دفتر صنعت NT
تحریریه خط معمار
نگارنده: ماریه عطایی
شرکت معماری آوگون
منبع: archdaily.com
تعداد بازدید: 85










































