
بازسازی و طراحی داخلی منزل با هدف اکولوژی
معمار Consuelo Jorge با نوآوری در تکنیک ها و فرار از استانداردها، بیش از ۱۵ سال پیش اقامتگاه خود را در گوشه ای از یک محله سنتی و آرام در سائوپائولو ساخت. این مقاله به معرفی بازسازی و طراحی داخلی منزل با هدف اکولوژی این خانه می پردازد.
بازسازی خانه مسکونی متناسب با لایف استایل خانواده
این سازه فلزی سه طبقه همراه با ارتفاع سقف ۹ متری ساخته شده است. که نور طبیعی، شیشه و موادی را که برای پایداری، برداشت آب باران و انرژی خورشیدی انتخاب شده بودند، بررسی کرده است. بازسازی و ساخت این پروژه در ۹ ماه به پایان رسیده است.
او همه این شرایط ساخت و ساز را با یک ویژگی منحصر به فرد و انقلابی متحول کرد. در عمل، چندین مفهوم نو آورانه، محیطی و معماری وجود دارد، اما اصلی ترین آن ها زندگی است. Consuelo و خانواده اش عاشق باغبانی، دوچرخه و ماجراجویی هستند، این روحیه و لایف استایل سبب شده تا این خانه را به یک خلوتگاه راحت برای همه زمان ها تبدیل کنند.
یکپارچه سازی فضاهای داخلی و خارجی منزل
یکپارچه سازی یکی از مفاهیم اساسی در این پروژه است. سه طبقه از لحاظ بصری و محیطی به هم مرتبط هستند، با غلبه شیشه و سفید، نور شدید در خانه پخش می شود، جایی که فضاها یکدیگر را کامل می کنند و در عین حال فضایی منحصر به فرد مانند یک لفت را برای آنها ایجاد می کنند.
فضاهای داخلی و خارجی با هم ارتباط برقرار می کنند و اهمیت یکپارچگی را برای خانه مشهودتر می کنند، همانطور که معمار طراحی کرده است. یکی از نکات برجسته این پروژه یک راهرو شیشه ای است که از اتاق نشیمن عبور می کند و اتاق خواب زوج را به اتاق خواب دختر وصل می کند.
اجزای ساختار ساختمان خانه
ساختار خانه به طور کامل از فلز با تیرها و ستون های قابل مشاهده “I” ساخته شده بود، با هدف کاهش زمان ساخت و هزینه های نهایی، علاوه بر ایجاد ظاهری مدرن و بدون رنگ.
پوشش با عایق حرارتی در پشم سنگ، وزن کل سازه را کاهش می دهد و اجازه می دهد تا یک پوشش خمیده داشته باشد که به نرم شدن گرما در روزهای گرم کمک می کند. دهانه های بزرگ در طبقات مسئول گذرگاه های هوا هستند، جایی که تهویه متقاطع هوا را در سراسر خانه می برد.
Consuelo با هدف اکولوژی و راحتی برای خانواده اش، موفق شد خانه ای با تمام الزامات پایدار، با طراحی آینده نگر و ارتباط متقابل محیط ها و بالاتر از همه راحتی طراحی کند. معمار پروژه را به یک خانه کامل تبدیل کرد.
در ادامه خط معمار شما را به دیدین سایر تصلاویر از پروزه بازسازی و طراحی داخلی منزل با هدف اکولوژی دعوت می نماید.
- بازسازی و طراخی داخلی خانه مسکونی
- بازسازی و طراخی داخلی خانه مسکونی
- بازسازی و طراخی داخلی خانه مسکونی
- بازسازی و طراخی داخلی خانه مسکونی
- بازسازی و طراخی داخلی خانه مسکونی
- بازسازی و طراخی داخلی خانه مسکونی
- بازسازی و طراخی داخلی خانه مسکونی
- بازسازی و طراخی داخلی خانه مسکونی
- بازسازی و طراخی داخلی خانه مسکونی
- بازسازی و طراخی داخلی خانه مسکونی
- بازسازی و طراخی داخلی خانه مسکونی
- بازسازی و طراخی داخلی خانه مسکونی
- بازسازی و طراخی داخلی خانه مسکونی
- بازسازی و طراخی داخلی خانه مسکونی
- بازسازی و طراخی داخلی خانه مسکونی
- بازسازی و طراخی داخلی خانه مسکونی
- بازسازی و طراخی داخلی خانه مسکونی
- بازسازی و طراخی داخلی خانه مسکونی
- بازسازی و طراخی داخلی خانه مسکونی
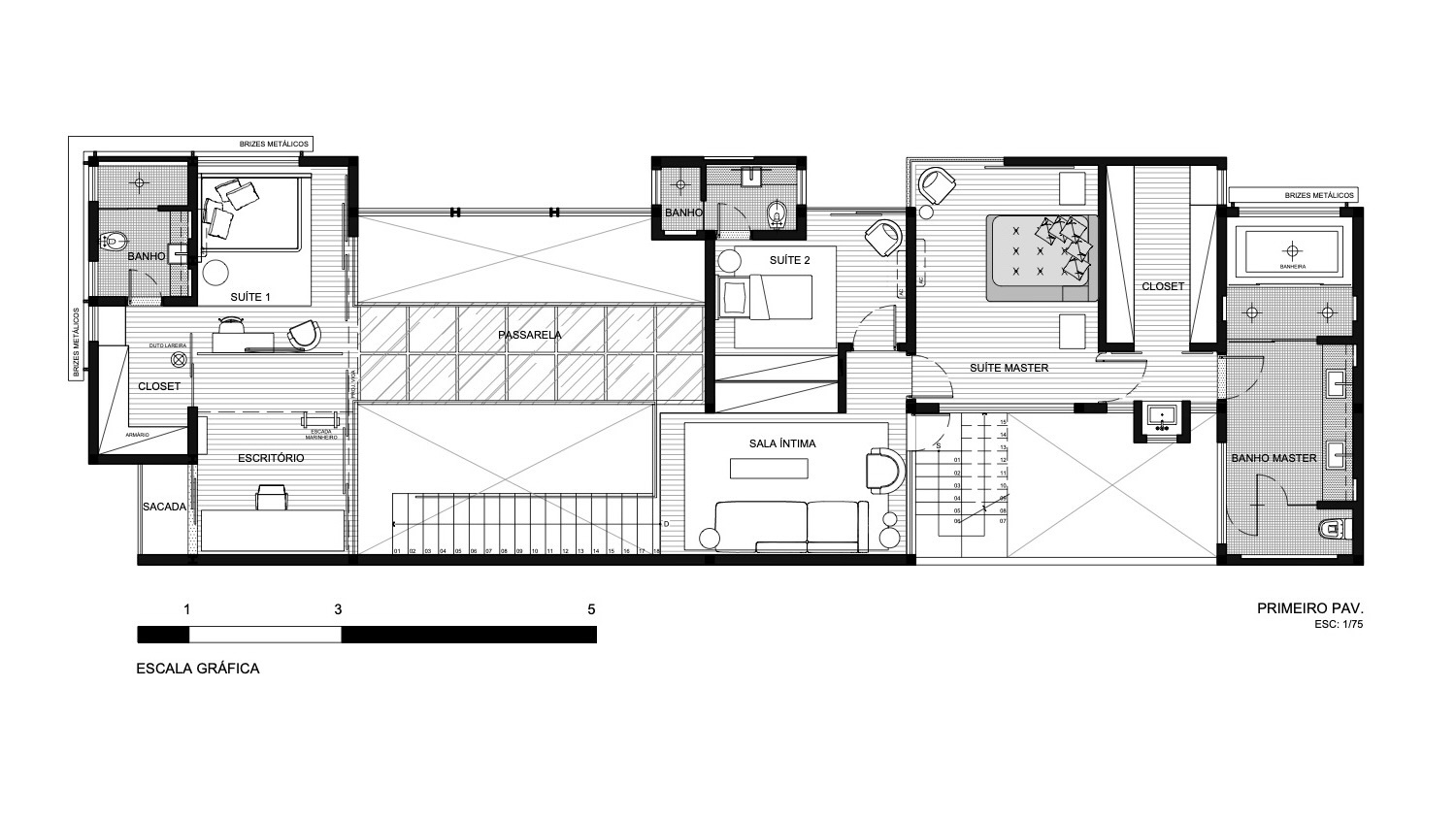
پلان ها، دیاگرام، سکشن و غیره.
- پلان های بازسازی خانه مسکونی
- پلان های بازسازی خانه مسکونی
- پلان های بازسازی خانه مسکونی
تحریریه خط معمار
نگارنده: ماریه عطایی
شرکت معماری آوگون
منبع: archdaily
تعداد بازدید: 861


























