
بازسازی خانه مسکونی نیرا
معماران: پامیراستودیو ( فائزه توسلی آرا، بابک عباس آبادی، زنده یاد علیرضا مددی)
گرافیک و ترسیم: یاسمین سلیمانی، امید خوش طینت، گیتا کاویانی اصل
عکاسان: دید استودیو، فائزه توسلی آرا
تاریخ اتمام پروژه: ۱۴۰۲
مساحت: ۴۹۸ مترمربع
موقعیت : همدان
بازسازی خانه نیرا (روشنایی) در زمینی به مساحت ۴۹۸ مترمربع و زیربنای ۳۳۰ مترمربع در شهر همدان قرار دارد. خانه برای خانواده ای سه نفره بازسازی شده که مهمترین خواسته های آنها اضافه شدن کاربری هایی برای آسایش و آرامش بیشتر شامل فضاهای تفریحی _ ورزشی، فضاهای دورهمی، پارکینگ و گلخانه بوده است. در این مقاله به بررسی ویژگی های بازسازی مسکونی این بنا و ویژگی هایی که طراحان در آن بنا بر خواسته و نیاز کارفرما به شیوه اصولی و درست ایجاد کرده اند می پردازیم.
استراتژی های اصلی پروژه
در این پروژه کارفرما تاکید بر استفاده از رنگ های شاد و متریال سنتی در داخل خانه داشته است. با توجه به سبک زندگی و خواسته های این خانواده، استراتژی های اصلی پروژه، بر اساس ارتقا تجربه زیسته این خانواده در عملکردهای رفاهی-تفریحی،عملکردهای مسکونی و عملکردهای زیبایی شناسی، زندگی بخشیدن به فضاها، استفاده از رنگ و استفاده حداکثری از نور طبیعی و تعامل با طبیعت شکل گرفته است.
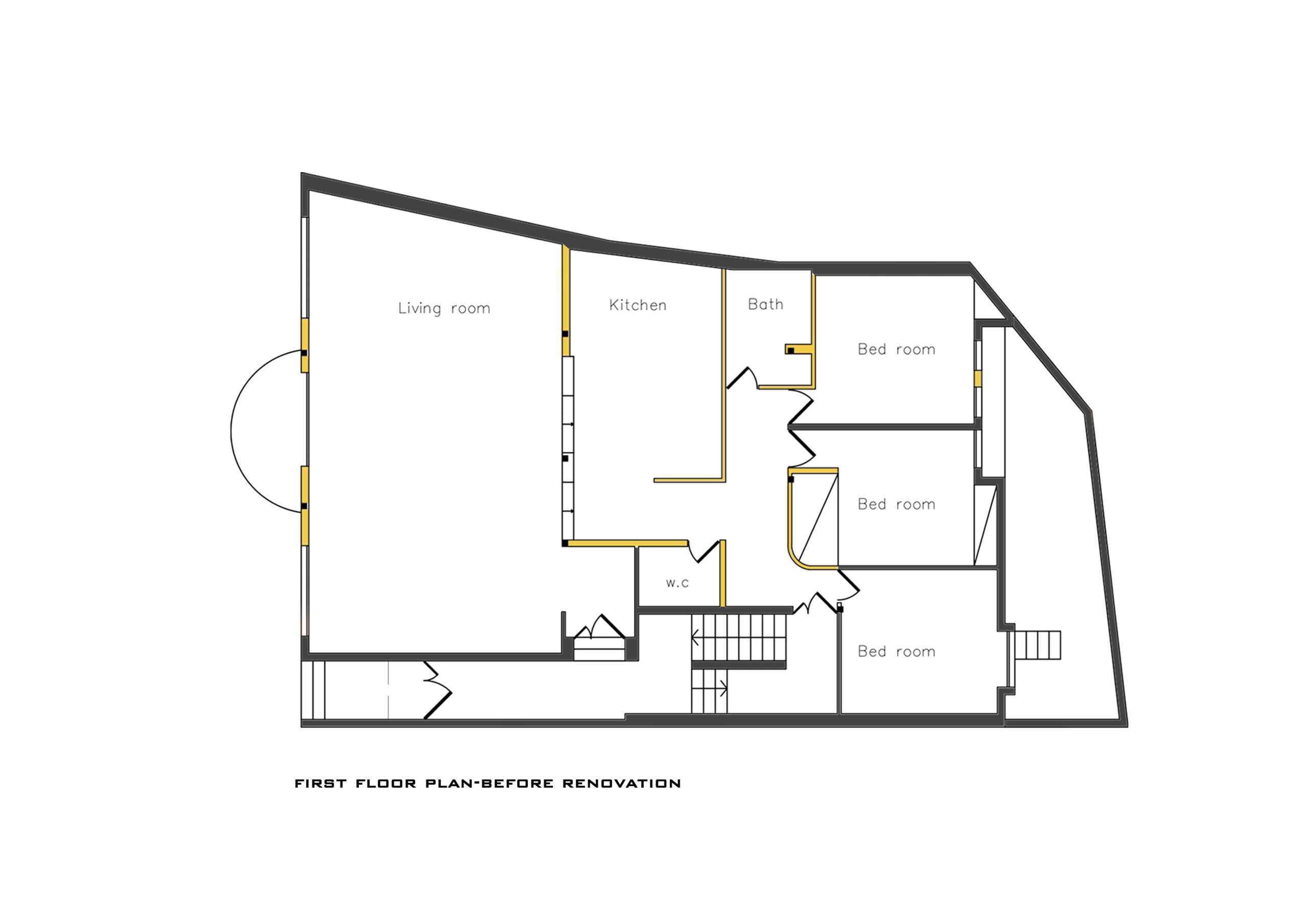
پلان اصلاحی و تغییرات آن
در سیرکولاسیون وضع موجود سردرگمی هایی در دسترسی ها وجود داشته است. ورودی اصلی شاخصی وجود نداشته و فضای پرتی بین سالن ها و خوابها وجود داشته است. در پلان اصلاحی با جابجایی استقرار آشپزخانه به مجاورت نما، دید و نور مستقیم به حیاط میسر شده. فضای پرت از بین رفته و جای آن، نشیمنی با ویژگی های خاص بلحاظ فرم و رنگ و نورگیری جایگزین شده است. ورودی شاخصی تعریف شده که بمنزله فضای تقسیم بخش مسکونی و تفریحی هم عمل می کند.
خوابها با تناسبات مطلوب تر همراه با کمد ها و سرویس مجزا طراحی شده است. بعد از اصلاح ایرادات سیرکولاسیون پلان وضع موجود، تقویت سازه ای و شیبدار کردن بخشی از سقف جهت کشاندن نور به داخل تلاش شده تا تجربه های فضاهای متعدد فرمی و ارتباط کاربران با آسمان و نور در تداخل فضاهای درون و بیرون ایجاد شود.
استقرار و محدودیت نورگیری
طبقه زیرین با متراژ ۸۴ مترمربع محوطه انباری و موتورخانه می باشد که بعد از به حداکثر رساندن ارتفاع طبقه، به فضای سونا، استخر آب سرد و جکوزی اختصاص داده شده است. در مجاورت آن آشپزخانه دوم و کلوزت هم در نظر گرفته شده است. همچنین با طراحی جزئیات معماری و انتخاب مصالح مدرن و سنتی، لایه های غنی تری از تجربه فضایی برای یک منزل مسکونی ایجاد شده است.
استقرار و محدودیت نورگیری این پروژه از چالش های اصلی بوده که سعی شده بیشترین بهره از آفتاب در جهت زندگی بخشیدن به فضاها، رقص نور در طول روز، دید به آسمان از مکان های مختلف، کاویدن سطوح سفید با رنگ های شاد، تعبیه فضاهایی برای استقرار گیاهان، طراحی و راه اندازی فضای استخر و سونا و جکوزی، استفاده از تایپولوژی ها مانند بازشوهای حداکثری در جهت بالابردن کیفیت فضاها و تجارب مختلف و در نهایت آرامش و آسایش ساکنین تلاش کردیم.
انتخاب رنگ متناسب با خانه مسکونی
در این پروژه بازسازی مسکونی با استفاده از تعامل قوی کالبد بنا با شرایط طبیعی مانند نور، آب و گیاه، معنابخشی عمیقتری به واژه “سکونت” داده شده است. با اهمیت به سلیقه و خواسته ساکنان از رنگ سبز که فراوان ترین رنگ در طبیعت، تازه و سرشار از زندگی است در اتاق خواب فرزند استفاده شده است. و از رنگ زرد که رنگ اشتیاق و شادکامی است در فضای نشیمن بهره برده شده.
اضافه شدن سرویس های مستقل برای اتاق خواب اصلی و اتاق فرزند، دید به آبنمای حیاط پشتی از اتاق خواب اصلی، دید دوطرفه به فضای بیرون و دسترسی مستقل به سالن به حیاط شمالی در اتاق فرزند، اضافه شدن حجم گلخانه با دسترسی مستقیم به سالن پذیرایی و امتداد سقف گلخانه برای جانمایی پارکینگ اضافه، از دخل و تصرف هایی بود که نسبت به وضع موجود، انجام شده است.
جمع بندی نهایی
در نهایت به خانه ای گرم و شاد رسیدیم که هر منطقه ارتباط مستقیمی با فضای بیرونی دارد و نور خورشید بطور مداوم از تمام سطوح خانه عبور می کند. به طور خاص در اتاق خواب والدین با دید به آبنما و صدای آب ،کاربران آرامش خاصی را تجربه خواهند کرد. حیاط پشتی با ایده تبدیل به فضایی برای تمرکز و خلوت گزینی و حیاط اصلی فضایی برای هیاهوهای جمعی طراحی شده. به منظور پاسخگویی به اقلیم سرد و کوهستانی شهر همدان از سیستم تاسیساتی ترکیبی بویلر و رادیاتورهای گرمایشی و سیستم گرمایش از کف استفاده شد.
تصاویر
در ادامه خط معمار شما را به دیدن سایر تصاویر از پروژه بازسازی خانه مسکونی نیرا دعوت می نماید.
پلان ها، دیاگرام، سکشن و غیره
- پلان ها و مشخصات معماری مسکونی نیرا
- پلان ها و مشخصات معماری مسکونی نیرا
- پلان ها و مشخصات معماری مسکونی نیرا
- پلان ها و مشخصات معماری مسکونی نیرا
- پلان ها و مشخصات معماری مسکونی نیرا
- پلان ها و مشخصات معماری مسکونی نیرا
- پلان ها و مشخصات معماری مسکونی نیرا
- پلان ها و مشخصات معماری مسکونی نیرا
- پلان ها و مشخصات معماری مسکونی نیرا
- پلان ها و مشخصات معماری مسکونی نیرا
- پلان ها و مشخصات معماری مسکونی نیرا
- پلان ها و مشخصات معماری مسکونی نیرا
- پلان ها و مشخصات معماری مسکونی نیرا
- پلان ها و مشخصات معماری مسکونی نیرا
- پلان ها و مشخصات معماری مسکونی نیرا
- پلان ها و مشخصات معماری مسکونی نیرا
- پلان ها و مشخصات معماری مسکونی نیرا
- پلان ها و مشخصات معماری مسکونی نیرا
- پلان ها و مشخصات معماری مسکونی نیرا
- پلان ها و مشخصات معماری مسکونی نیرا
- پلان ها و مشخصات معماری مسکونی نیرا
تحریریه خط معمار
نگارنده: ماره عطایی
منبع:
تعداد بازدید: 1,381



















































