
اهمیت طراحی نما در معماری ساختمان تجاری
معماری ساختمان انهاکو که حدود ۱۵ دقیقه پیاده از نزدیکترین ایستگاه قطار در حومه شهر فاصله دارد، در مرز بین یک محله مسکونی و یک منطقه تجاری-دولتی مختلط واقع شده است.
کارفرما هنگامی که در حال بررسی سایت بوده است با استدیو طراحی اورگانیک دیزاین تماس گرفته، اما مطمئن نبود که آیا یک ساختمان تجاری اجاره شده در آنجا می تواند جریان ثابتی از مردم را جذب کند، با توجه به اینکه موقعیت مکانی یک بلوک خارج از جاده اصلی است و خیلی نزدیک به ایستگاه نیست.
معماری و طراحی نمای ساختمان تجاری این پروژه موضوع مورد بررسی در این مقاله می باشد.
بررسی موقعیت مکانی سایت
در روزهای هفته، افراد مسن، خانه داران و کودکان به دلایل مختلف از مرز بین دو منطقه مذکور عبور می کنند. منطقه تجاری شامل ترکیبی از کلینیک ها، مطب های استئوپات، و امکانات رفاهی است که سالمندان به آنها مراجعه می کنند.
سوپرمارکت ها و کافه هایی که خانه داران در آن جمع می شوند. و مراکز آمادگی آزمون با حضور کودکان. در تعطیلات آخر هفته، خانواده ها از بازار صبحگاهی که در پارکینگ شهرداری برگزار می شود خرید می کنند.
زمانی را در پارک بزرگ می گذرانند و قبل از بازگشت به محله مسکونی در کافه ها یا رستوران های خانوادگی غذا می خورند. ما ساختمان را به عنوان یک سکوی آشنا برای رفت و آمد مردم بین دو منطقه، با ایوان هایی که می توانند توقف کنند و استراحت کنند، تصور می کردیم.
استفاده از ایوان برای حفظ ارتباط با بیرون ساختمان
مردم هم در تعطیلات آخر هفته و هم در روزهای هفته در اطراف ساختمان جریان دارند. در حالی که ازدحام جمعیت کمتر از آن چیزی است که در نزدیکی یک ایستگاه وجود دارد، ترافیک قابل اعتمادی برای پیاده روی جامعه وجود دارد.
با تمرکز بر این، یک ایوان در مجاورت خیابان ایجاد کردیم و بالکن هایی را در اطراف طبقه دوم و سوم پیچیدیم. سطح زیرین بالکن ها، لبه های چوبی گرم و ارگانیک را تشکیل می دهد که مردم را به داخل می کشاند و طراحی ساختمان را مشخص می کند.
ساختمان رو به شمال است تا از مناظر خیابانی پردرخت به سمت پارک و تالار شهر بهره مند شود و از مناظر و صداهای جشنواره های تابستانی و نمایشگاه های گیاهان در اطراف دعوت شود.
این ساختمان چند منظوره شامل مغازهها و یک درمانگاه است و ایوان به خوبی به خیابان می رسد تا افراد در هر سنی بتوانند در گردش های خود در اطراف محله در روزهای هفته و آخر هفته توقف کنند.
جمع بندی نهایی
هدف طراحان، طراحی یک ساختمان تجاری بود که از این طریق توسط اعضای جامعه حفظ شود. فضای داخلی را می توان به صورت کلی، طبقاتی یا واحدی بسته به نیاز اجاره کرد.
در ادامه خط معمار شما را به دیدین سایر تصاویر از پروژه اهمیت طراحی نما در معماری ساختمان تجاری دعوت می نماید.
- معماری ساختمان تجاری
- معماری ساختمان تجاری
- معماری ساختمان تجاری
- معماری ساختمان تجاری
- معماری ساختمان تجاری
- معماری ساختمان تجاری
- معماری ساختمان تجاری
- معماری ساختمان تجاری
- معماری ساختمان تجاری
- معماری ساختمان تجاری
- معماری ساختمان تجاری
- معماری ساختمان تجاری
- معماری ساختمان تجاری
- معماری ساختمان تجاری
- معماری ساختمان تجاری
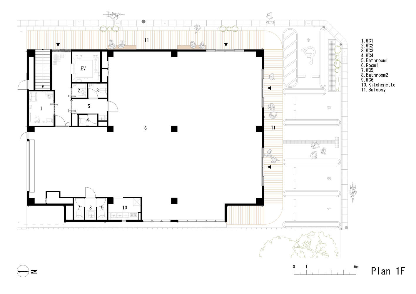
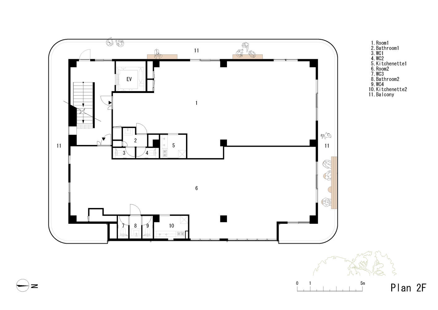
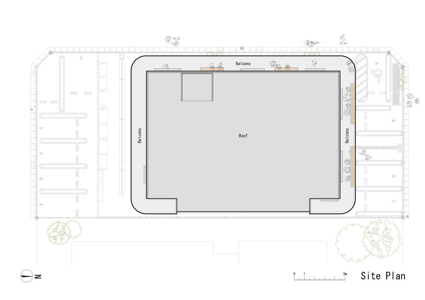
پلان ها، دیاگرام، سکشن و غیره.
- پلان ها دیاگرام و سکشن معماری ساختمان تجاری
- پلان ها دیاگرام و سکشن معماری ساختمان تجاری
- پلان ها دیاگرام و سکشن معماری ساختمان تجاری
- پلان ها دیاگرام و سکشن معماری ساختمان تجاری
- پلان ها دیاگرام و سکشن معماری ساختمان تجاری
- پلان ها دیاگرام و سکشن معماری ساختمان تجاری
- پلان ها دیاگرام و سکشن معماری ساختمان تجاری
- پلان ها دیاگرام و سکشن معماری ساختمان تجاری
- پلان ها دیاگرام و سکشن معماری ساختمان تجاری
- پلان ها دیاگرام و سکشن معماری ساختمان تجاری
- پلان ها دیاگرام و سکشن معماری ساختمان تجاری
تحریریه خط معمار
نگارنده: ماریه عطایی
شرکت معماری آوگون
منبع: archdaily
تعداد بازدید: 302






























