
نمای شیشه ای در طراحی ویلا

این ویلا که در محله پر جنب و جوش بالی واقع شده است، با آوردن صمیمیت و گرمای یک خانه خصوصی به یک محیط مهمان نوازی، ایده یک ملک اجاره ای را از نو تعریف می کند. خواسته کارفرما ساده اما چالش برانگیز بود: طراحی یک ویلای استخردار برای اجاره که عمیقاً شخصی – “خانه” – به نظر برسد، در عین حال که یک بیانیه معماری قوی ارائه دهد. طراحی با کاوش در آنچه که در اکثر ویلاهای اجاره ای در جزیره وجود نداشت، آغاز شد: حس آشنایی، نرمی و صمیمیت فضایی که باعث می شود خانه به جای اینکه صحنه سازی شده باشد، حس زندگی در آن را القا کند.
این ویلا که در زمینی به مساحت ۱۵۰ متر مربع ساخته شده است، در دو طبقه با مساحت کل ۱۹۰ متر مربع گسترش می یابد. روایت فضایی، باز بودن را با حریم خصوصی و عملکرد را با احساس متعادل می کند. صفوف ورودی، حال و هوای این تجربه را تعیین می کنند. بازدیدکنندگان با یک سرسرای کوچک که با بلوک های شیشه ای قاب بندی شده و عمداً رو به آسمان باز گذاشته شده است، روبرو می شوند. نور خورشید در طول روز از آن عبور می کند، در حالی که گاهی اوقات باران به داخل نفوذ می کند و لحظه ای ملموس و شاعرانه را قبل از ورود کامل به داخل ایجاد می کند. به جای اتاق نشیمن معمولی که معمولاً ورودی خانه های اندونزیایی را مشخص می کند، اولین فضایی که با آن مواجه می شوید، آشپزخانه ای با یک پیشخوان جزیره ای ساده است – حرکتی نامتعارف که رسمیت را با صمیمیت جایگزین می کند. این چیدمان به طرز ماهرانه ای تعامل و حس راحتی خانگی را که به ندرت در اقامتگاه های کوتاه مدت یافت می شود، تشویق می کند.
فراتر از آشپزخانه، فضاهای غذاخوری و نشیمن به صورت یک توالی به هم پیوسته چیده شدهاند که توسط یک پارتیشن شفاف ساخته شده از چوب و شیشه شیاردار از هم جدا شدهاند. مرز مبهم، هر اتاق را بدون قطع ارتباط بصری یا فضایی آن تعریف میکند و به نور و هوا اجازه میدهد تا آزادانه جریان یابد. در قلب ویلا یک حیاط داخلی با یک استخر شنا قرار دارد – یک هسته روباز که از نظر عملکردی و احساسی، طرح را تثبیت میکند. این حیاط واسطهای بین فضای عمومی در جلو و فضاهای خواب خصوصی در پشت و طبقه بالا است. پله کنار استخر یک پیوند عمودی ایجاد میکند و در عین حال این ایده را تقویت میکند که حرکت در خانه همیشه باید با فضای بیرون در ارتباط باشد.
نمای شیشه ای در طراحی ویلا
معماری این بنا فراتر از سازماندهی داخلی آن امتداد دارد. نمای بیرونی، بیانگر یک بیان هندسی و واضح است که با استفاده از بلوکهای شیشهای تعریف میشود – مادهای که هم به دلیل کدری و هم به دلیل جذابیتش انتخاب شده است. سطح، فضای داخلی را از دید مستقیم محافظت میکند، در حالی که سایهنماهای کمرنگی را آشکار میکند و کنجکاوی را از بیرون دعوت میکند، بدون اینکه حریم خصوصی را به خطر بیندازد. این تعامل بین پنهان بودن و نمایان بودن به یک ویژگی تعیینکننده تبدیل میشود و نما را هم محافظتکننده و هم بیانگر میسازد. این طرح در برابر زیباییشناسی مرسوم گرمسیری که معمولاً در ویلاهای اجارهای بالی دیده میشود، مقاومت میکند و در عوض، خویشتنداری و صداقت مادی را برگزیده است.
هر تصمیمی که در این ویلا گرفته شده، با هدف القای آرامش و تعلق خاطر گرفته شده است. با وجود مساحت کم، خانه به لطف لایهبندی عمودی، نور فیلتر شده و ارتباط بصری مداوم با فضای سبز و آسمان، حس گستردگی را القا میکند. نتیجه، یک خلوتگاه شهری جمع و جور است که یک ملک اجارهای ساده را به یک تجربه فضایی معنادار تبدیل میکند – نه در مورد تجمل در باشکوهترین شکل آن، بلکه در مورد راحتی آرام و ریتم ملایم زندگی با نور، بافت و زمان.
در ادامه خط معمار شما را به دیدن سایر تصاویر نمای شیشه ای در طراحی ویلا دعوت می نماید.
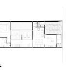
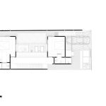
پلان ها، دیاگرام، سکشن و غیره.
تحریریه خط معمار
منبع: Archdaily
تعداد بازدید: 163

























