
طاق آجری در معماری ساختمان مسکونی
طاق آجری در معماری ساختمان مسکونی مربوط به پروژه ساختمان “Ishtika Aalaya” واقع در Chandigarh، هند می باشد. این اقامتگاه آجری از اشتیاق مشتریان به خانه ای خاکی الهام گرفته شده است. آب و هوای مرکب این مکان ایجاب می کند که ساختمان در اکثر فصول سال خنک تر باشد و در زمستان های سخت به نور کافی خورشید نیاز دارد. بنابراین، چیدمان توسط تحلیل مسیر خورشید دیکته شده است. در ادامه این مقاله به ویژگی های معماری و طراحی جذاب آن پرداخته می شود.
شرح تقسیم بندی فضای پروژه
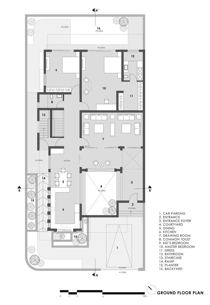
این خانه در سه سطح سازماندهی شده است. طبقه همکف خانه یک خانم مجرد و دختر ۱۰ ساله اش است، طبقه اول برای بازدیدکنندگان طولانی مدت و طبقه دوم برای استفاده خدمتکار در نظر گرفته شده است. این طرح حول یک حیاط می چرخد که به جای یک چاه نور صرف، فضای قابل استفاده خصوصی را به کاربران ارائه می دهد و گفت و گوی پویا بین فضاهای داخلی و خارجی ایجاد می کند. این حیاط به صورت استراتژیک در جلو (منطقه جنوب غربی) ساختمان قرار گرفته است که نفوذ آفتاب ظهر زمستانی را به فضای غذاخوری و به دنبال آن آفتاب بعد از ظهر در ایوان الحاق شده به محوطه نشیمن تضمین می کند.
ویژگی های طاق آجری
طاق آجری جسورانه در مرکز استیج قرار گرفته است و خود را با ورود به فضا از طریق درهای قوسی نشان می دهد. حجم های آجری در کنار هم و صفحات بتن اکسپوز به رنگ آجر با فنرهای بسیار، انتخابی کمک کننده برای مسدود کردن بیشتر جبهه جنوب غربی بوده است. فنستراسیون بزرگ روی دیوار آشپزخانه با یک مزرعه بزرگ همراه است، در نتیجه اجازه می دهد تا نور فیلتر شده در داخل باشد. فضای آشپزخانه و غذاخوری مدرن و مینیمال در سمت راست حیاط به رمپ سمت چپ متصل است.
این رمپ دسترسی بدون مانع را به طبقه همکف ارائه می دهد و در عین حال ورودی به طبقات بالا را از طریق پلکان جانبی جدا می کند. اما از داخل به هم متصل است. این رمپ بیشتر به حیاط خلوت منتهی می شود و به تداوم جالبی کمک می کند. به همراه حیاط خلوت دو اتاق خواب وجود دارد که برای اطمینان از حفظ حریم خصوصی با دقت قرار گرفته اند. اتاق خواب اصلی فضایی بدون درز با سقف بتنی خاکستری نمایان و فنرهای گسترده برای ارتباط بصری با حیاط خلوت است. پوشش داخلی فضاهای خصوصی با رنگ های ظریف طراحی شده است، در حالی که سقف بتنی اکسپوز به رنگ اخر به فضای نشیمن شادابی می بخشد.
هویت عنصر جدا نشدی
این پروژه امکان ترکیب هویت مدرن یک خانه را با حس سنتی خانه بررسی می کند. فضاهای داخلی چند منظوره فضایی را برای دگرگونی در طول زمان و طبق نظر کاربر به صورت روزانه فراهم می کند و احساس خانه را شکل می دهد. پوششی که اطراف این خانه را احاطه کرده است از نظر شخصیتی فردگرایانه و در واکنش با استفاده از ۳ نوع نقوش جلی، متنی است. صفحات بتنی اخرایی رنگ قرمز آجرکاری سنتی را تکمیل می کند و هویتی قوی به نما می بخشد. شادابی نمای آجری با استفاده از ملات قرمز به جای ملات خاکستری تضمین می شود. ترکیب این عناصر و فضاها واقعاً تجربه جالب و لذت بخشی را برای کاربران به ارمغان می آورد زیرا در مجموعه ای از فضاها هماهنگ با راحتی یک خانه قرار می گیرند.
در ادامه خط معمار شما را به دیدن سایر تصاویر از طراحی معماری ساختمان مسکونی Ishtika Aalaya دعوت می نماید.
- معماری و دکوراسیون داخلی خانه مسکونی
- معماری و دکوراسیون داخلی خانه مسکونی
- معماری و دکوراسیون داخلی خانه مسکونی
- معماری و دکوراسیون داخلی خانه مسکونی
- معماری و دکوراسیون داخلی خانه مسکونی
- معماری و دکوراسیون داخلی خانه مسکونی
- معماری و دکوراسیون داخلی خانه مسکونی
- معماری و دکوراسیون داخلی خانه مسکونی
- معماری و دکوراسیون داخلی خانه مسکونی
- معماری و دکوراسیون داخلی خانه مسکونی
- معماری و دکوراسیون داخلی خانه مسکونی
- معماری و دکوراسیون داخلی خانه مسکونی
- معماری و دکوراسیون داخلی خانه مسکونی
- معماری و دکوراسیون داخلی خانه مسکونی
- معماری و دکوراسیون داخلی خانه مسکونی
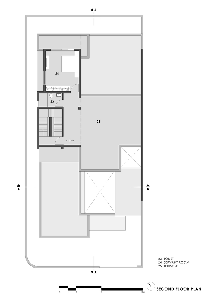
پلان ها، دیاگرام، سکشن و عیره.
- پلان های معماری و دکوراسیون داخلی خانه مسکونی
- پلان های معماری و دکوراسیون داخلی خانه مسکونی
- پلان های معماری و دکوراسیون داخلی خانه مسکونی
- پلان های معماری و دکوراسیون داخلی خانه مسکونی
- پلان های معماری و دکوراسیون داخلی خانه مسکونی
- پلان های معماری و دکوراسیون داخلی خانه مسکونی
- پلان های معماری و دکوراسیون داخلی خانه مسکونی
- پلان های معماری و دکوراسیون داخلی خانه مسکونی
- پلان های معماری و دکوراسیون داخلی خانه مسکونی
- پلان های معماری و دکوراسیون داخلی خانه مسکونی
تحریریه خط معمار
نگارنده: ماریه عطایی
شرکت معماری آوگون
منبع: archdaily
تعداد بازدید: 851





























