
معماری خانه ویلایی ایمان اثر آزیتا اطمینانی اصفهانی
نام پروژه: خانه ایمان
عملکرد: مسکونی
شرکت، مهندسین مشاور / دفتر طراحی: مهندسین مشاور نقش انگار
معمار اصلی: آزیتا اطمینانی اصفهانی
طراحی و معماری داخلی: آزیتا اطمینانی اصفهانی
نوع سازه: بتنی
سازه: مهدی رحمانی
نوع تاسیسات: فن کویل و چیلر
تاسیسات مکانیکی: جواد گیاهچین
تاسیسات الکتریکی: جواد دهقان
نورپردازی: آزیتا اطمینانی اصفهانی
آدرس پروژه: ایران، اصفهان.
مساحت زمین: ۹۶۵ مترمربع
زیربنا: ۶۱۵ مترمربع
تاریخ شروع پروژه: 1394
تاریخ پایان پروژه: 1401
خانه ایمان پاسخی است به برهه ای از زندگی مالکین جوان آن که به دنبال بستری متفاوت برای رشد ثمره زندگیشان بودند. کالبد معماری پروژه با سازماندهی فضایی پویا به مثابه ظرفی لبریز از نور، طراوت و آزادی، در تلاش است که امکان تجربه ای متفاوت از سبک رایج زیستن در جامعه مدرن امروزی را فراهم آورد. خط معمار در ادامه این مقاله به معماری خانه ویلایی ایمان و شرح ویژگی های آن می پردازد.
شکل گیری ایده خانه ایمان هم زمان با تولد فرزند خانواده در حدود ۷ سال پیش متولد و در طی گذر زمان و همراه با چالش های زیاد، رشد کرده است. این ایده مانند یک موجود زنده تکامل پیدا کرده است. معمار این بنا در مسیر و فرایند طراحی با تجربه خوشایندی که در ارتباط با کارفرما و ایمان قلبی او در مسیر طراحی، باعث شد تا پروژه به طراح سپرده شود. در ادامه مقاله به شرح و بررسی این پروژه می پردازیم.
ترکیب احجام کیوبیک
در این خانه ماهیت اصلی را ترکیب احجام کیوبیک ساده ای تشکیل داده است که روی صفحه ای که از سطح زمین بالا آمده است نشسته اند و فضاهای نیمه باز با استفاده از سطوح افقی و فرو نشستن ساختمان در دل زمین تعریف شده اند.
از این طریق علاوه بر تعدیل شرایط اقلیمی، با کمرنگ کردن مرز میان درون و بیرون خانه، ارتباط حسی و بصری ملموسی با حیاط خانه برقرار شده است.
بهره گیری از نور، آب، منظره درختان کاج، سطوح شیشه ای وسیع و تناسبات، تجربه ای بی واسطه از سر زندگی و پویایی سکانس های فضایی خانه را برای ساکنین به ارمغان آورده است و جاری شدن زندگی با شکل گیری خاطرات، فرصت ها و رفتارهای متنوع فردی و جمعی را به راحتی میسر ساخته است.
سطح بندی فضاهای مختلف
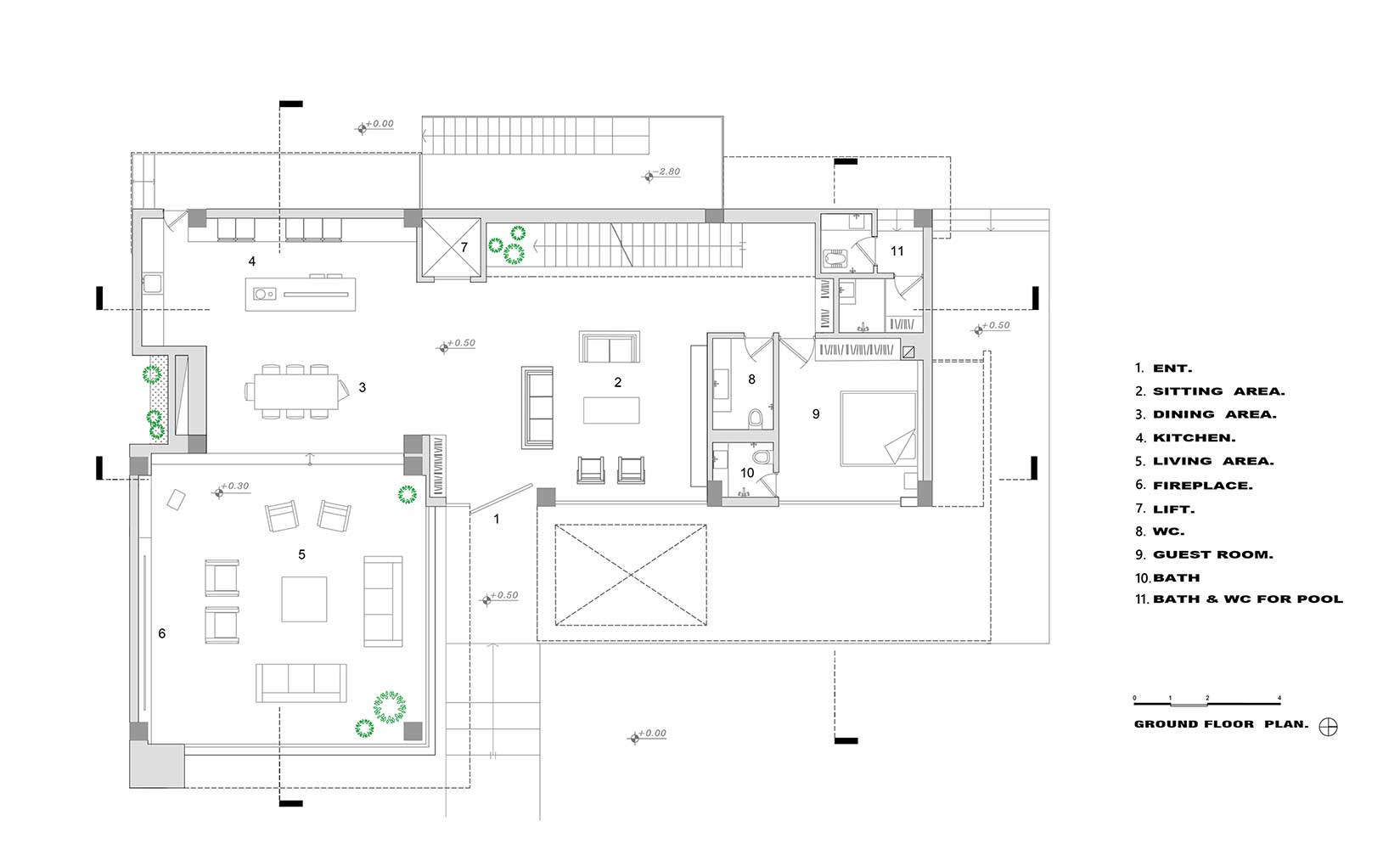
فضاهای مختلف بنا نیز به صورت افقی در سه سطح شامل فضاهای خصوصی (اقامت دائم در طبقهی اول)، نیمه خصوصی (پذیرایی خانوادگی و رسمی در طبقهی همکف) و فضاهای عمومی (سالن دورهمیهای دوستانه، سالن ورزش و اتاق کار در طبقه زیرزمین) صورت گرفته است.
فضای پذیرایی رسمی خانه که با تناسبات ارتفاعی سقف، جداره های شیشه ای بلند و شومینه تبدیل به قلب خانه شده است، فضای نشیمن خصوصی در طبقه اول را به حیاط متصل کرده است.
جمع بندی نهایی
تغییر سبک زندگی ساکنین بنا تحولی است که خانه ایمان، برای دستیابی به آن تلاش کرده است و با ارائه فضاهای مختلف در کنار هم و در عین حال مجزا که کیفیت همه فضاها و ارتباطات آن نیز با هم حفظ شده، توانسته است نوع نگاه و شیوه زندگی آن ها را تحت تاثیر قرار دهد و اتفاق های مختلف بسته به نیازهای انسانی را در آن جاری کند.
در ادامه خط معمار شما را به دیدین سایر تصاویر از پروژه معماری خانه ویلایی ایمان اثر آزیتا اطمینانی اصفهانی دعوت می نماید.
- معماری ساختمان ویلایی
- معماری خانه ویلایی ایمان اثر آزیتا اطمینانی اصفهانی
- معماری ساختمان ویلایی
- معماری ساختمان ویلایی
- معماری ساختمان ویلایی
- معماری ساختمان ویلایی
- معماری ساختمان ویلایی
- معماری ساختمان ویلایی
- معماری ساختمان ویلایی
- معماری ساختمان ویلایی
- معماری ساختمان ویلایی
- معماری ساختمان ویلایی
- معماری ساختمان ویلایی
- معماری ساختمان ویلایی
- معماری ساختمان ویلایی
- معماری ساختمان ویلایی
- معماری ساختمان ویلایی
- معماری ساختمان ویلایی
- معماری ساختمان ویلایی
- معماری ساختمان ویلایی
- معماری ساختمان ویلایی
- معماری ساختمان ویلایی
- معماری ساختمان ویلایی
- معماری ساختمان ویلایی
- معماری ساختمان ویلایی
- معماری ساختمان ویلایی
- معماری ساختمان ویلایی
- معماری ساختمان ویلایی
- معماری ساختمان ویلایی
- معماری ساختمان ویلایی
- معماری ساختمان ویلایی
- معماری ساختمان ویلایی
- معماری ساختمان ویلایی
- معماری ساختمان ویلایی
- معماری ساختمان ویلایی
- معماری ساختمان ویلایی
- معماری ساختمان ویلایی
- معماری ساختمان ویلایی
- معماری ساختمان ویلایی
- معماری ساختمان ویلایی
- معماری ساختمان ویلایی
پلان ها، دیاگرام، سکشن و غیره.
- پلان ها دیاگرام سکشن و غیره معماری خانه ویلایی
- پلان ها دیاگرام سکشن و غیره معماری خانه ویلایی
- پلان ها دیاگرام سکشن و غیره معماری خانه ویلایی
- پلان ها دیاگرام سکشن و غیره معماری خانه ویلایی
- پلان ها دیاگرام سکشن و غیره معماری خانه ویلایی
- پلان ها دیاگرام سکشن و غیره معماری خانه ویلایی
- پلان ها دیاگرام سکشن و غیره معماری خانه ویلایی
- پلان ها دیاگرام سکشن و غیره معماری خانه ویلایی
- پلان ها دیاگرام سکشن و غیره معماری خانه ویلایی
- پلان ها دیاگرام سکشن و غیره معماری خانه ویلایی
- پلان ها دیاگرام سکشن و غیره معماری خانه ویلایی
- پلان ها دیاگرام سکشن و غیره معماری خانه ویلایی
- پلان ها دیاگرام سکشن و غیره معماری خانه ویلایی
تحریریه خط معمار
نگارنده: ماریه عطایی
شرکت معماری آوگون
منبع: aoapedia
تعداد بازدید: 2,740


























































