
معماری خانه ای مدرن با استفاد از بتن
معماری خانه ای مدرن با استفاد از بتن
شرح پروژه:
هر پروژه پاسخی به چندین پارامتر است – برخی فیزیکی، برخی متافیزیکی، برخی ملموس و برخی ناملموس. امروزه ایده پایداری امری ضروری است، اما تعریف آن دارای تفاسیر بسیاری است. یکی از این پاسخ ها و تفسیرها، این خانه ای است که ما با علاقه نامش را گذاشتیم – خانه آزمایش های بتن. این خانه پاسخی است به این سوال که چگونه متریال سخت و صنعتی مثل بتن می تواند در طراحی معماری خانه ای مدرن استفاده شود؟
خانه آزمایش های بتن یک پروژه معماری مسکونی است که در شهر ساحلی علیباگ، نزدیک بمبئی در کشور هند واقع شده است. این خانه در میان یک باغ انبه واقع شده است. هر مشتری برای آزمایش ایده ها و مواد جدید برای خانه خود مردد است، اما نه صاحب این خانه که حامی واقعی است. او که در MIT تحصیل کرده است، یک ذهن مترقی متفکر با نگرشی مدرن نسبت به نوآوری و درک این موضوع که شکست تنها یکی از چندین قدم برای موفقیت است. او میدانست که محیط زیست و مراقبت از آن اصلی ترین موضوعاتی است که هزینه های هر چیز جدید، در نتیجه ی مستقیم آن اندازه گیری نمی شود، بلکه در کاری که سال های آینده انجام می شود، و معماری بالاترین شکل هنر است.
معماری خانه ای مدرن با استفاد از بتن برای جلوگیری از تعصب در مورد توضیح دقیق خانه، در زیر ویژگی های برجسته آن را آورده شده است.
مفهوم و برنامه ریزی
- در همان ابتدای طراحی، تصمیم گرفته شد که خانه را بدون ایجاد مزاحمت در اطراف درختان قرار دهند، که طبیعتاً منجر به شکل تکه تکه شده پر پیچ و خم خانه شد.
- یک گودال موجود در زمین در محل به صورت حیاط فرو رفته در مقابل خانه ساخته شده است. درختان در داخل رشد می کنند و تقریباً شاخ و برگ سبز را به خانه می آورند.
- خانه به عنوان یک فضای استودیویی بزرگ با تنها یک اتاق خواب برای زوج طراحی شده است. دو اتاق مهمان در یک ساختمان جداگانه به عنوان ضمیمه خانه اصلی روی هم چیده شده اند.
دیوارها و سازه
- دیوارها و سازه ها به گونه ای قرار گرفته اند که به عناصر مجسمه سازی تبدیل شوند و روی شبکه خاصی قرار نگیرند. این خانه یک فضای بزرگ بدون ستون است، با سقف بتنی مسطح بدون درز بدون دیوارهای داخلی که مانع این حجم بتنی می شود.
- سه برآمدگی بزرگ شیب دار و کنسولی، مفاهیم پایداری سازه را به چالش می کشند. این ها با دقت طراحی شده اند تا به حرکات بیرونی اطراف خانه سایه بیافزایند، اما به شکل مسطح خانه نیز اضافه کنند.
- ضخامت دیوارهای خانه از ۴۵۰ میلی متر تا ۱۰۰۰ میلی متر است. ضخامت دیوارها به عنوان یک عایق طبیعی عمل می کند و باعث می شود داخل خانه بسیار خنک تر از بیرون باشد.
- ضخامت همچنین فرصت هایی را برای استفاده از حجم دیوارها برای قرار دادن ذخیره سازی در داخل، پنجره های فرورفته برای عایق رطوبتی و در این مورد کل سیستم خنک کننده خانه را نیز فراهم می کند.
- یک روش خنک کننده فعال که از روش های باستانی برای گرفتن نسیم خنک به فضاها الهام می گیرد، این روش تهویه مطبوع از ضخامت دیوارها به نفع خود استفاده می کند و کانال های کوچکی را درون آنها حک می کند که این هوای خنک را حمل می کند و آن را از طریق گردش می کند. حجم زیادی از خانه نیز به نوبه خود دیوارها را در بتن خنک می کند.
مواد – بتن : بازیافتی : آزمایشی
- خانه به یک ماده صادق است. که بتن ریزی شده است. دیوارهای لمسی همگی با آزمایش های مختلف در بتن ریخته می شوند که بافت های خاصی را برای هر یک از دیوارها ایجاد می کند. آزمایش ها شامل بتن ریخته گری شده است. بتن واترجت و بتن نهایی را با رنگدانه ها تشکیل داده است.
- دیوارهای ضخیم خانه اصلی به صورت بتنی با آوار از محل ریخته می شود تا استفاده از مصالح کاهش یابد و بافت خشن خاصی در هنگام آسیاب شدن دیوارها ایجاد شود. این آوارها شامل تراشه های سنگ، آجرهای شکسته و گاهی قطعات بزرگ سنگ های باطله است که تقریباً مانند یک یادگار در دیوارها جاسازی شده اند.
- بلوک مهمان در بتن صورتی ریخته می شود که با افزودن پودر آجر در آن ساخته می شود. این رنگ رژگونه ای به بلوک مهمان در برابر خاکستری سرد خانه اصلی می دهد.
- کف ها با بازیافت قطعات سنگ های ضایعاتی که در ترازو بتنی ریخته شده اند ساخته می شوند. کادپا سیاه، مرمر سفید و مرمر صورتی همگی در مناطق مختلف به اشکال مختلف استفاده می شوند تا کفپوش را به یک اثر هنری بزرگ تبدیل کنند. کف اتاق خواب و حمام در تراشه های کاشی شکسته کوچکی که روی سیمان قرار گرفته اند ساخته شده اند که می درخشند و نور خورشید را منعکس می کنند که این فضاها را روشن می کند.
- نور یک مصالح ساختمانی بسیار مهم در تمام کارهای ما است. این خانه دارای نورگیر های بازیگوش متعدد، همه اشکال، اندازه ها، و طبقه های عجیب و غریب است، با این حال همه بهطور استراتژیک برای جذب نور در طول روز قرار گرفته اند. پرتوهای تند نور از این نورها روی زمین می افتند و تقریباً یک بو از تکه ها و سایه های مختلف نور در سراسر خانه ایجاد می کنند.
خانه آزمایش های بتن در واقع یک آزمایش از همه جنبه های آن، برنامه ریزی، ساخت، طراحی سازه، استفاده از مصالح، بازی نور و سایه و خدمات آن است. جزئیات گنجانده شده در معماری و فضای داخلی این خانه فتنه ای مستمر ایجاد می کند و فضای غیرقابل تحمل آن را بسیار صمیمی و قابل زندگی می کند. خانه فضایی است که نمی توان از آن عکس گرفت، اما فضایی است که باید با آن روبرو شد و تجربه کرد.
در ادامه خط معمار شما را به دیدن سایر تصاویر از پروژه معماری خانه ای مدرن با استفاد از بتن دعوت می نماید.
- استفاده از بتن در معماری مدرن مسکونی
- استفاده از بتن در معماری مدرن مسکونی
- استفاده از بتن در معماری مدرن مسکونی
- استفاده از بتن در معماری مدرن مسکونی
- استفاده از بتن در معماری مدرن مسکونی
- استفاده از بتن در معماری مدرن مسکونی
- استفاده از بتن در معماری مدرن مسکونی
- استفاده از بتن در معماری مدرن مسکونی
- استفاده از بتن در معماری مدرن مسکونی
- استفاده از بتن در معماری مدرن مسکونی
- استفاده از بتن در معماری مدرن مسکونی
- استفاده از بتن در معماری مدرن مسکونی
- استفاده از بتن در معماری مدرن مسکونی
- استفاده از بتن در معماری مدرن مسکونی
- استفاده از بتن در معماری مدرن مسکونی
- استفاده از بتن در معماری مدرن مسکونی
- استفاده از بتن در معماری مدرن مسکونی
- استفاده از بتن در معماری مدرن مسکونی
- استفاده از بتن در معماری مدرن مسکونی
- استفاده از بتن در معماری مدرن مسکونی
- استفاده از بتن در معماری مدرن مسکونی
- استفاده از بتن در معماری مدرن مسکونی
- استفاده از بتن در معماری مدرن مسکونی
- استفاده از بتن در معماری مدرن مسکونی
- استفاده از بتن در معماری مدرن مسکونی
- استفاده از بتن در معماری مدرن مسکونی
- استفاده از بتن در معماری مدرن مسکونی
- استفاده از بتن در معماری مدرن مسکونی
- استفاده از بتن در معماری مدرن مسکونی
- استفاده از بتن در معماری مدرن مسکونی
- استفاده از بتن در معماری مدرن مسکونی
- استفاده از بتن در معماری مدرن مسکونی
- استفاده از بتن در معماری مدرن مسکونی
- استفاده از بتن در معماری مدرن مسکونی
- استفاده از بتن در معماری مدرن مسکونی
- استفاده از بتن در معماری مدرن مسکونی
- استفاده از بتن در معماری مدرن مسکونی
- استفاده از بتن در معماری مدرن مسکونی
- استفاده از بتن در معماری مدرن مسکونی
- استفاده از بتن در معماری مدرن مسکونی
- استفاده از بتن در معماری مدرن مسکونی
- استفاده از بتن در معماری مدرن مسکونی
- استفاده از بتن در معماری مدرن مسکونی
- استفاده از بتن در معماری مدرن مسکونی
- استفاده از بتن در معماری مدرن مسکونی
- استفاده از بتن در معماری مدرن مسکونی
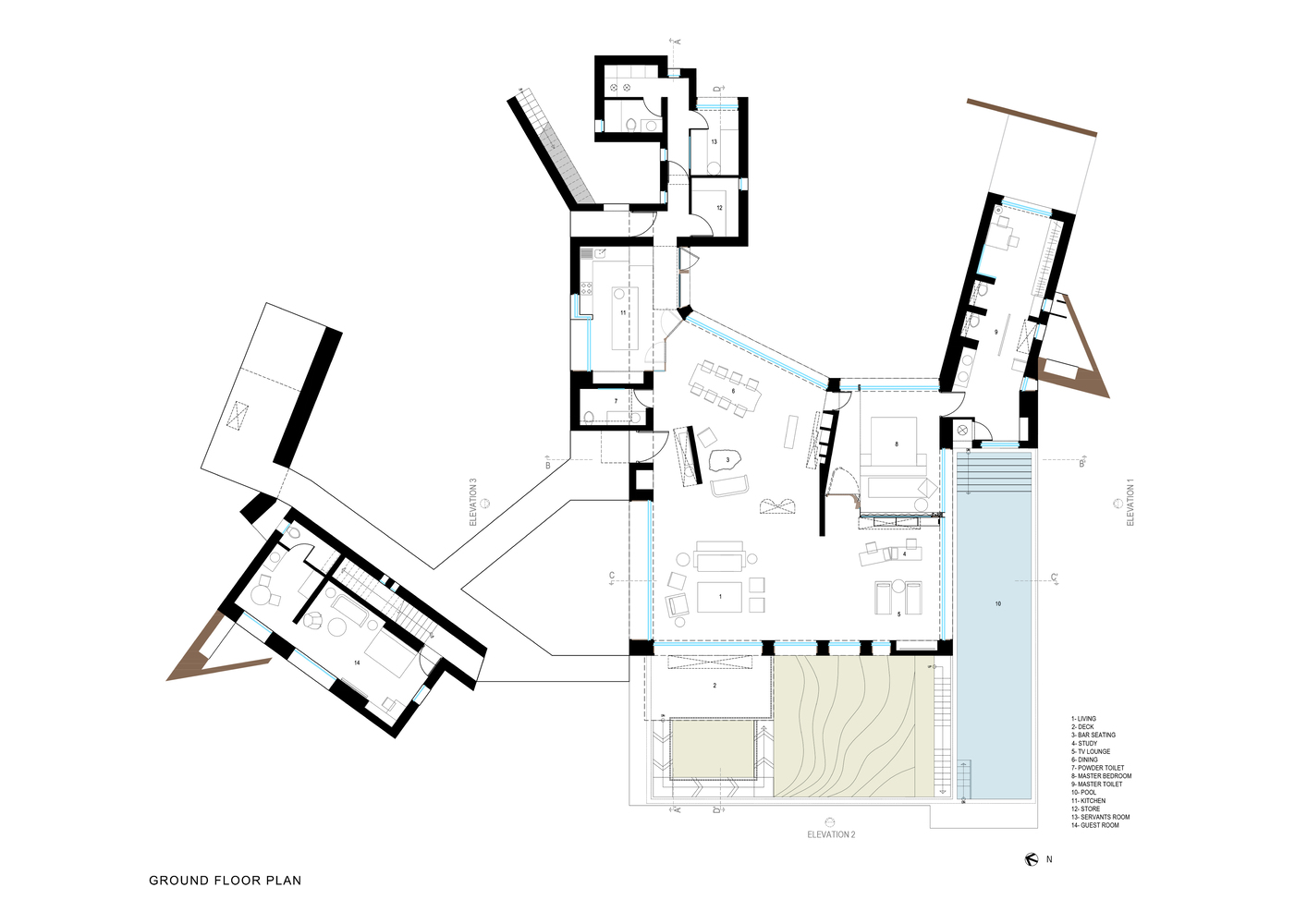
پلان ها، دیاگرام، سکشن و غیره.
- پلان های معماری ساختمان مسکونی
- پلان های معماری ساختمان مسکونی
- پلان های معماری ساختمان مسکونی
- پلان های معماری ساختمان مسکونی
- پلان های معماری ساختمان مسکونی
- پلان های معماری ساختمان مسکونی
- پلان های معماری ساختمان مسکونی
تحریریه خط معمار
نگارنده: ماریه عطایی
شرکت معماری آوگون
منبع: archdaily
تعداد بازدید: 285



























































واقعا از معماری خونه لذت بردم و عاشق فضای سبز باغش شدم البته به شخصه دوست داشتم که فضای داخل خونه حس وحال گرمتری داشته باشه
تشکر از خانم عطایی و سایت خط معمار بابته این مطلب