
معماری خانه سیلک ، دفتر معماری نسیم

معماری خانه سیلک
معماری: دفتر معماری نسیم
معمار: وحید نسیمی
همکاران طراحی: رضا نسیمی، زهره شاه حسینی، سارا سلطانیان
طراحی و معماری داخلی: وحید نسیمی
مجری: وحید نسیمی، سعید همتی
مهندس تاسیسات: بهمن قرآنی
نوع تاسیسات: فن کویل سقفی توکار، چیلر
مهندس سازه: مصطفی شب خوان
موقعیت: ایران، کاشان، خیابان امیرکبیر
مساحت زمین: ۷۰۰ مترمربع
مساحت زیربنا: ۹۸۰ مترمربع
سال: ۱۴۰۰-۱۳۹۸
عکاس پروژه: نفیسه اسماعیلی، علی مقامی
شرح پروژه از زبان معمار
خانهی سیلک در محور امیرکبیر شهر کاشان، در زمینی به مساحت ۷۰۰ مترمربع و با زیربنای حدود ۹۸۰ مترمربع بنا شده است. به دلیل عرض کم معابر دسترسی به بنا، جبهههای نورگیر سمت این معابر دارای محدودیت اندازه برای بازشوها بوده و همچنین ارتفاع و دستانداز این بازشوها تابع قوانین شهرداری بود. بنابراین بیشترین نورگیری باید از یک جبههی خانه و از سمت حیاط صورت میگرفت.
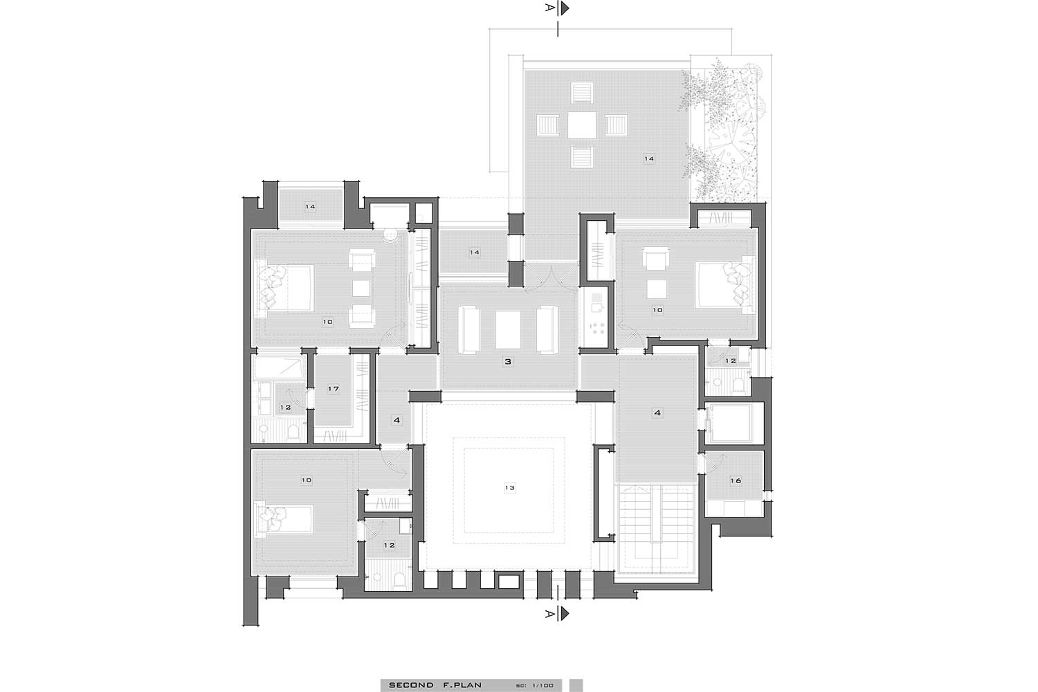
این خانه برای یک خانوادهی چهار نفره و مطابق نیاز آنها در سه طبقه (دو طبقه روی پیلوت) و به صورت دوبلکس طراحی شده است.
در طبقهی همکف، لابی و ورودی اصلی، پارکینگ و یک فضای نشیمن با حال و هوای حوضخانههای سنتی کاشان، اما به شکلی کاملا مدرن، طراحی و ساخته شده است.
فضاهای طبقهی اول خانه شامل پذیرایی، نشیمن، آشپزخانه و دو اتاقخواب و طبقهی دوم شامل سه اتاقخواب، یک نشیمن کوچک، لاندری و یک تراس مشرف به حیاط است.
فضای نشیمن مهمترین بخش و قلب این خانه در طراحی معماری آن به شمار میآید. نکتهی مهم در ارتباط با این بخش از ساختمان، ارتفاع بلند و ایجاد یک ارتباط بصری قوی با فضاهای خصوصی طبقهی دوم و آشپزخانه در طبقهی اول و همچنین پلکان اکسپوز جهت ارتباط عمودی است.
مهمترین مسئله در طراحی خانه، ارتباط منطقی و دقیق و جانمایی صحیح فضاها و عملکردها برای دستیابی به یک زندگی راحت و مطلوب بوده که با هماهنگی و در نظر گرفتن خواستههای کارفرما به ثمر رسیده است.
در طرح نما از مصالح آجر و سنگ استفاده شد. بهرهگیری از آجر به عنوان مصالح غالب نما در جهت هماهنگی با اقلیم گرم و خشک منطقهی کاشان بوده و رنگ سفید آن با توجه به خواست و نظر کارفرما انتخاب شده است.
در ادامه خط معمار شما را به دیدن سایر تصاویر دعوت می نماید.
- طراحی و ساخت ویلا ایرانی
- طراحی و ساخت ویلا ایرانی
- طراحی و ساخت ویلا ایرانی
- طراحی و ساخت ویلا ایرانی
- طراحی و ساخت ویلا ایرانی
- طراحی و ساخت ویلا ایرانی
- طراحی و ساخت ویلا ایرانی
- طراحی و ساخت ویلا ایرانی
- طراحی و ساخت ویلا ایرانی
- طراحی و ساخت ویلا ایرانی
- طراحی و ساخت ویلا ایرانی
- طراحی و ساخت ویلا ایرانی
- طراحی و ساخت ویلا ایرانی
پلان ها، دیاگرام، سکشن و غیره.
- مدارک فنی پروژه خانه سیک
- مدارک فنی پروژه خانه سیک
- مدارک فنی پروژه خانه سیک
- مدارک فنی پروژه خانه سیک
- مدارک فنی پروژه خانه سیک
تحریریه خط معمار
منبع: اقتباسی از دانشنامه هنرمعماری
تعداد بازدید: 488





















