
طراحی نمای سبز در معماری ساختمان مسکونی
ساختمان مسکونی پرسیکا / استودیو بوژگان
معماران: استودیو بوژگان
معمار اصلی: حامد بدری احمدی
ساخت: تهران تحکیم
توسعه طراحی: سارا ثقفی مقدم، ندا وزیری
تیم ارائه: کاوه دادگر، مریم معماریان
طراحان داخلی: نبیلا جامی، عرفان احمدی
طراح سازه: عزیزالله جبلی
عکس ها: محمد حسن اتفاق
سال: ۲۰۲۳
کشور: ایران
پرسیکا یک ساختمان مسکونی یازده طبقه است که پس از ساخت سازه به دفتر معماری بوژگان تحویل داده شد. قرار بود ظاهری معمولی شبیه به اکثر ساختمان های این منطقه به خود بگیرد اما در طول مسیر، مسیر خود را تغییر داد و به ساختمانی پویا و سرسبز تبدیل شده است. پرسیکا با تراس های سبز خود حضور خود را در محله برجسته کرده است و محیطی دلپذیر را برای ساکنانش فراهم کرده است.
موقعیت سایت
این ساختمان در پایتخت ایران، تهران واقع شده است. شهری که توسط ساخت و سازهای عظیم با انواع آلودگی ها بلعیده شده است که ویژگی های مهمی مانند باغ ها و فضاهای باز عمومی را از دست می دهد. ساختمان ها یکی پس از دیگری به اشکال مختلف ساخته می شوند و شهر در ازای فضاهای سبز از دست رفته سود کافی نمی برد.
احداث فضای سبز در معماری آپارتمان
با در نظر گرفتن این عوامل، تصمیم به ایجاد یک فضای سبز عمودی در چندین طبقه گرفته شده است تا راه حلی برای محیط شهری ارائه دهد. این شامل ادغام سطوح اضافی با عمق و ضخامت کافی در ساختار موجود است که به طور خاص برای کشت و رشد درختان طراحی شده است. درختان و گیاهان به دلیل انعطاف پذیری و سازگاری با این اقلیم با دقت انتخاب و از جنگل های هیرکانی آورده می شوند.
یکی از جنبه های مهم و تاثیرگذار پروژه، حضور جریان آب در کنار ساختمان بود که بخشی از طراحی شده است. به طور معمول، چنین مسیرهای آبی غیرقابل دسترس و متروک هستند. با این حال، این بخش خاص از زمین به یک فضای عمومی با تفکر طراحی شده تبدیل شده است که همچنین به عنوان یک منطقه آماده برای مواقع اضطراری عمل می کند.
طراحی پلان ساختمان
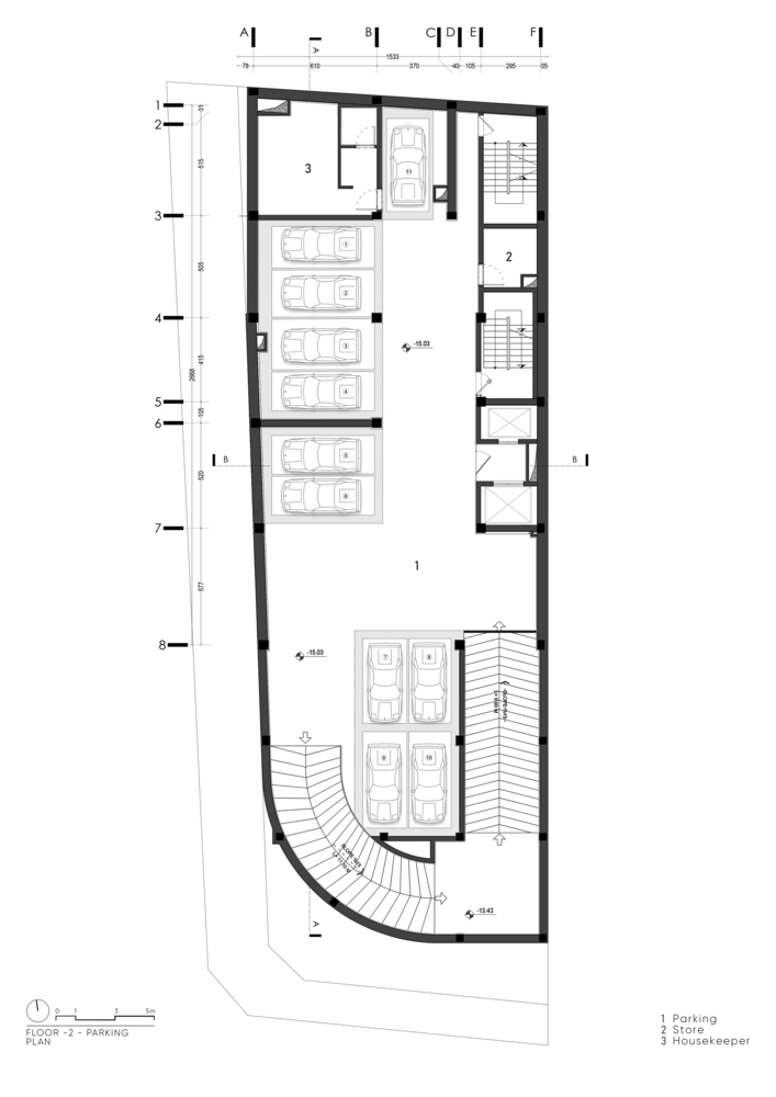
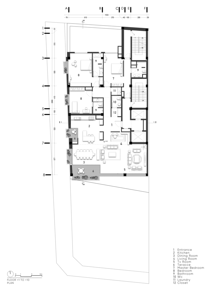
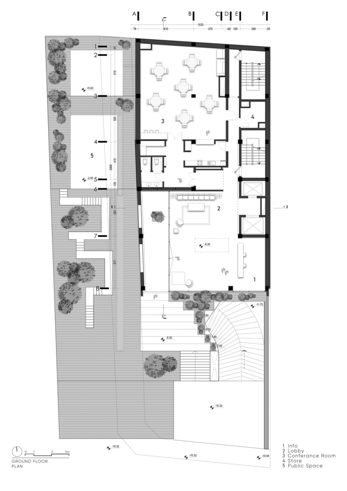
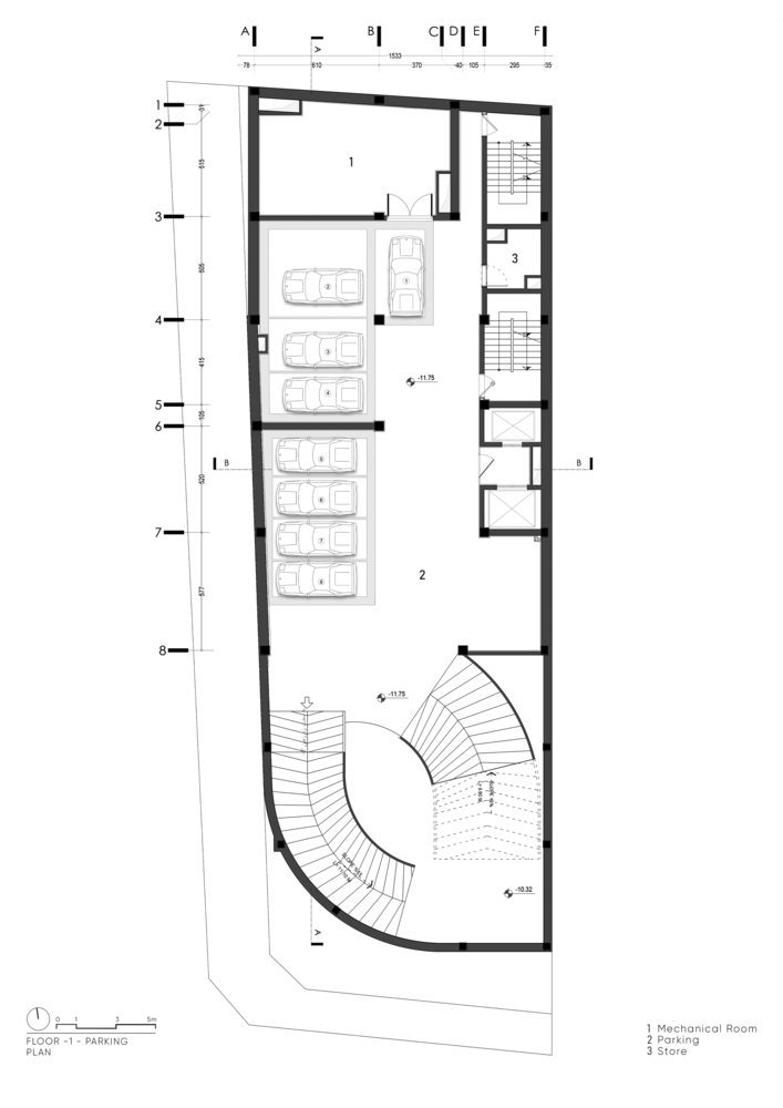
طبقه اول ساختمان شامل یک لابی و یک سالن اجتماعات است، در حالی که طبقه دوم میزبان یک سالن ورزشی است. ۹ طبقه بعدی هر کدام یک واحد مسکونی را در خود جای می دهند. سطوح زیرزمین امکانات پارکینگ و استخر شنا را برای ساکنین فراهم می کند.
پرسیکا با توجه به موقعیت خود در داخل شهر، منظره ای دیدنی از تهران دارد. در حالی که فقدان شرایط زندگی ایده آل را به شهروندان یادآوری می کند، فضایی آرام و دلپذیر برای تماشای شهر را برای ساکنان فراهم می کند.
تصاویر
در ادامه خط معمار شما را به دیدن سایر تصاویر از پروژه طراحی نمای سبز در معماری ساختمان مسکونی دعوت می نماید.
- معماری آپارتمان مسکونی
- معماری آپارتمان مسکونی
- معماری آپارتمان مسکونی
- معماری آپارتمان مسکونی
- معماری آپارتمان مسکونی
- معماری آپارتمان مسکونی
- معماری آپارتمان مسکونی
- معماری آپارتمان مسکونی
- معماری آپارتمان مسکونی
- معماری آپارتمان مسکونی
- معماری آپارتمان مسکونی
- معماری آپارتمان مسکونی
- معماری آپارتمان مسکونی
- معماری آپارتمان مسکونی
- معماری آپارتمان مسکونیمعماری آپارتمان مسکونی
پلان ها، دیاگرام، سکشن و غیره.
- پلان ها و مشخصات معماری آپارتمان مسکونی
- پلان ها و مشخصات معماری آپارتمان مسکونی
- پلان ها و مشخصات معماری آپارتمان مسکونی
- پلان ها و مشخصات معماری آپارتمان مسکونی
- پلان ها و مشخصات معماری آپارتمان مسکونی
- پلان ها و مشخصات معماری آپارتمان مسکونی
- پلان ها و مشخصات معماری آپارتمان مسکونی
- پلان ها و مشخصات معماری آپارتمان مسکونی
تحریریه خط معمار
نگارنده: ماریه عطایی
منبع: archdaily
تعداد بازدید: 1,547



























