
طراحی داخلی مجتمع کودک و مهد کودک | Sarit Shani Hay
طراحی داخلی مجتمع کودک و مهد کودک |Sarit Shani Hay
شرح پروژه:
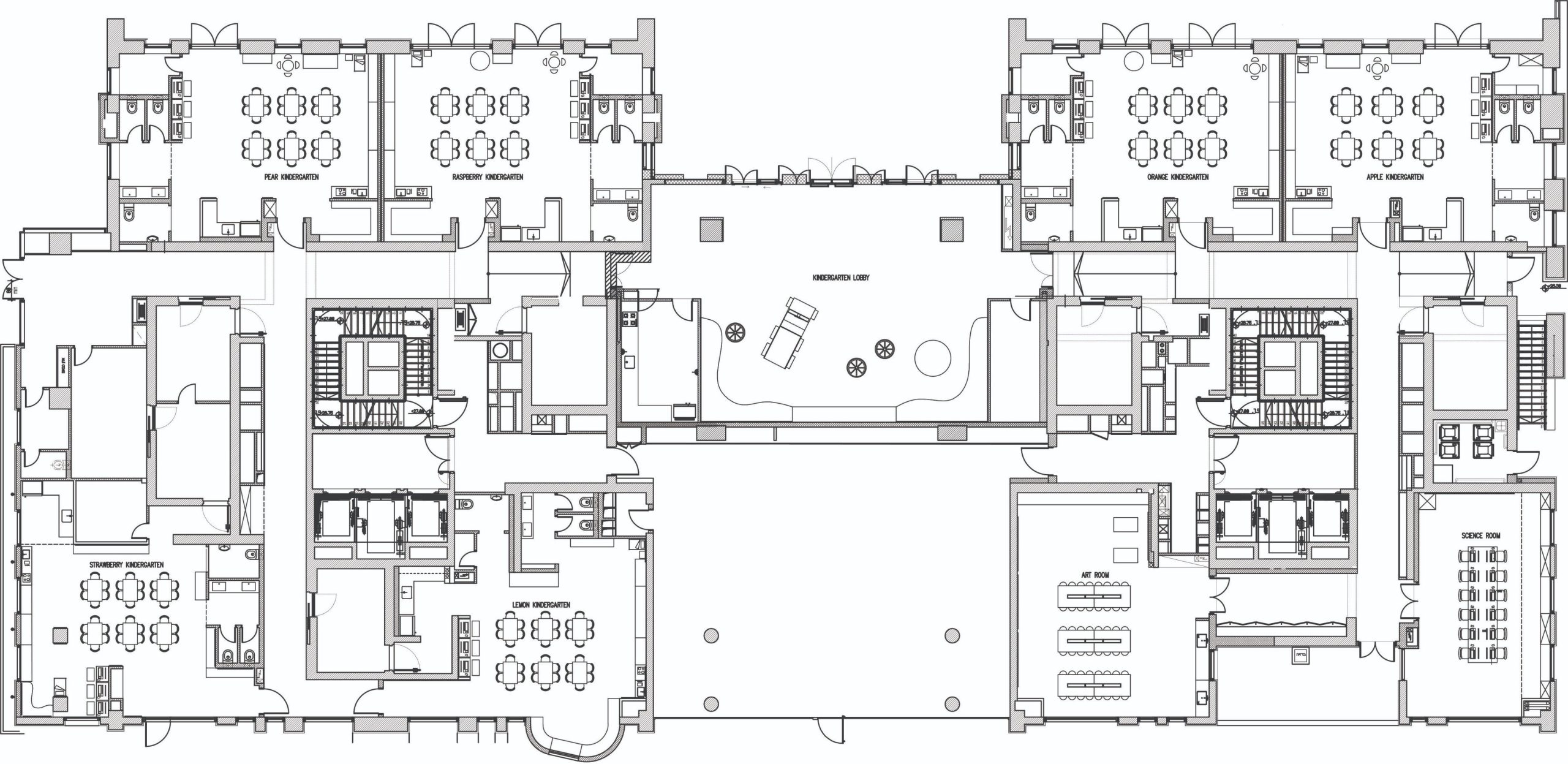
طراحی داخلی مجتمع کودک و مهد کودک Sarit Shani Hay، فضای ۳۰۰۰ مترمربعی را کودکان ۳ ماهه تا ۶ ساله پر از هیجان و انرژی در خود جای داده است. این مجموعه از سه کلاس مهدکودک، شش کلاس مهدکودک و یک لابی مشترک تشکیل شده است.
طراحی مرکز آموزشی از تاریخچه سایت و شهر تل آویو الهام گرفته شده است. نقوش میوه و سبزیجات در سراسر فضا به همراه غرفههای بازار، جعبهها، کامیونهای تحویل و زندگی بازار دیده میشود. این مضامین به اشیاء کاربردی مانند کتابخانهها، واحدهای ذخیرهسازی و غیره تبدیل شدند.
استفاده صحیح از روانشناسی رنگ کودک به دلیل اینکه فضای شاد و پرانرژی به وجود آورده است، کودک را به لحاظ ذهنی تحریک می کند و او احساس می کند سرشار از انرژی است می تواند ساعتها بازی کند، بدون اینکه خسته شود.
طراحی لابی مشترک ۱۳۰ متر مربعی بر اساس زبان گرافیکی مجسمهای است که از کتاب ناهوم گاتمن “مسیر پوست پرتقال” الهام گرفته شده است. دیوار اصلی از طاقچه های بالشتکی تشکیل شده است که به اشکال هندسی مختلف طراحی شده اند که امکان نشستن، مطالعه و استراحت را فراهم می کند.
یک پرتقال بزرگ که در مرکز قرار دارد، بازی تعاملی را تشویق می کند. در سرتاسر راهروی مهدکودک، خانههای بازی چوبی رنگارنگ مختلف، بچهها را به بازی و کاوش دعوت میکنند. طراحی فضا هم نیازهای آموزشی و هم میل به ترویج یک محیط بازی دوستانه را در نظر گرفته که فعالیت عملی و تجربه ای ماندگار را ارائه می دهد.
در ادامه خط معمار شما را به دیدن تصاویر بیشتر از این مجموعه دعوت می نماید.
- طراحی داخلی مهد کودک
- طراحی داخلی مهد کودک
- طراحی داخلی مهد کودک
- طراحی داخلی مهد کودک
- طراحی داخلی مهد کودک
- طراحی داخلی مهد کودک
- طراحی داخلی مهد کودک
- طراحی داخلی مهد کودک
- طراحی داخلی مهد کودک
- طراحی داخلی مهد کودک
- طراحی داخلی مهد کودک
- طراحی داخلی مهد کودک
پلان ها، دیاگرام، سکشن و غیره.
- پلان طراحی مهد کودک
تحریریه خط معمار
نگارنده: ماریه عطایی
شرکت معماری آوگون
منبع: www.archilovers.com
تعداد بازدید: 238

















