
طراحی خانه ای ویلایی برای گذران وقت بیشتر در طبیعت
مفهوم کلیدی طراحی خانه MV024 ایجاد یک ریز اقلیم با استفاده از فرم خود ساختار و توسعه یک طراحی زیست اقلیم در داخل خانه و همچنین در حیاط می باشد. معمار طراحی زیست اقلیم را در اولویت معماری قرار داده است. به منظور دستیابی به آن، او بر آب و هوا و محیط محلی تأکید کرده و داده ها و زمینه سایت – که جهت گیری، مورفولوژی زمین، دما، باد و رطوبت است- را مورد تحقیق و تجزیه و تحلیل قرار داده است. در ادامه با شرح و بررسی معماری ساختمان ویلایی مسکونی با ما همراه باشید.
عناصر اصلی در طراحی موقعیت بنا
دو عنصر اصلی که سنتز هندسه و موقعیت فضاهای مختلف را تقویت می کرد، بادهای شدید شمالی و غربی منطقه و اختلاف ارتفاع دو متری موجود در قطعه زمین بوده است. اولاً به دلیل اختلاف ارتفاع، قسمت های جانبی خانه در پایین ترین سطح قرار گرفته و در نتیجه یک منطقه زیرزمینی ایجاد شده است. به دلیل وزش بادهای شدید، ارتفاعات شمالی و غربی به عنوان یک عنصر محافظ، عمدتاً “کور” و بدون هیچ منافذ بزرگی انتخاب شده اند. برعکس، دهانه های بزرگ فضاهای زندگی اصلی رو به جنوب و شرق جهت گیری شده اند که هم نور طبیعی روز و هم افزایش تابش خورشیدی را در طول فصل زمستان تضمین می کنند.
طبقه همکف به عنوان پایه ای شکل گرفت که هندسه حجم طبقه اول را پشتیبانی می کند. این پایه از طریق دیوارهای ضخیمی که با روکش سنگی محلی پوشانده شده اند، شکل گرفته است که کابینت های آشپزخانه و سایر وسایل انباری را در بر می گیرد. دیوار سنگی شرقی به منظور اطمینان از حریم خصوصی فضاهای بیرونی اصلی زندگی به علاوه برای محافظت از حیاط اصلی در برابر باد غربی، به طول سه متر امتداد دارد.
استفاده از تکنولوژی برای کنترل گرما و سرمای ویلا
طبقه اول شامل یک حجم سفید تمیز با نمای سوراخ شده است که دارای – یک سیستم سایه خورشیدی متحرک می باشد. سایه ها بر اساس انطباق با تشعشعات خورشیدی، نور خورشید و دستاوردهای حرارتی را در فضاهای نشیمن داخلی طبقه اول کنترل می کنند. سیستم به صورت دستی حداکثر افزایش حرارتی را در طول فصل زمستان فراهم می کند. علاوه بر این، سیستم بسته حفاظت خورشیدی را در طول فصل زمستان فراهم می کند و اجازه می دهد نور طبیعی روز نیز پخش شود. رنگ سفید حجم، جذب تابش خورشیدی را کاهش می دهد، بدون اینکه نور طبیعی روز و تهویه را قطع کند.
برای پیش بینی تهویه متقاطع با توجه به بادهای شدید، در ضلع غربی اتاق نشیمن و ناهار خوری منطقه ای از پنجره های فن لایت ایجاد شد. در حالی که در ضلع شمالی طبقه اول – راهرو و اتاق خواب مستر – تعداد و اندازه محدود بازشوها تعبیه شده بود.
ارتباط بین زمین بازی و آشپزخانه یکی دیگر از خواسته های ضروری سنتز بود. بنابراین، یک فضای خالی در سقف آشپزخانه طراحی شد تا تماس بصری عمودی بین دو فضا حاصل شود. با افزودن توری در فضای خالی به عنوان یک نوع بازی، ما به فضایی بازیگوش بین دو فضایی دست یافتیم که به صورت روزانه در بین خانواده استفاده می شود.
جمع بندی نهایی
خانه MV024 به عنوان مکانی طراحی شده است که یک خانواده چهار نفره می تواند با استفاده از تمام فضاها به روشی پایدار، خانه خود را در آن بنا کند. این شامل عناصری از سبک زندگی قبرسی است که به معنای گذراندن زمان زیادی در خارج از منزل و لذت بردن از نور روز و آفتاب گرم است. سنتز کلی با احترام به محیط طبیعی، بهره گیری کامل از شرایط آب و هوایی منطقه و دستیابی به روشی پایدار برای زندگی از طریق طراحی زیست اقلیمی آن توسعه یافته است.
در ادامه خط معمار شما را به دیدین سایر تصاویر از پروژه طراحی خانه ای ویلایی برای گذران وقت بیشتر در طبیعت دعوت می نماید.
- معماری ساختمان ویلایی
- معماری ساختمان ویلایی
- معماری ساختمان ویلایی
- معماری ساختمان ویلایی
- معماری ساختمان ویلایی
- معماری ساختمان ویلایی
- معماری ساختمان ویلایی
- معماری ساختمان ویلایی
- معماری ساختمان ویلایی
- معماری ساختمان ویلایی
- معماری ساختمان ویلایی
- معماری ساختمان ویلایی
- معماری ساختمان ویلایی
- معماری ساختمان ویلایی
- معماری ساختمان ویلایی
- معماری ساختمان ویلایی
- معماری ساختمان ویلایی
- معماری ساختمان ویلایی
- معماری ساختمان ویلایی
- معماری ساختمان ویلایی
- معماری ساختمان ویلایی
- معماری ساختمان ویلایی
- معماری ساختمان ویلایی
- معماری ساختمان ویلایی
- معماری ساختمان ویلایی
- معماری ساختمان ویلایی
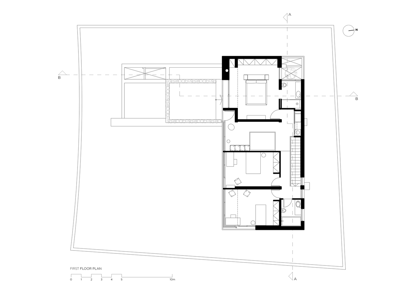
پلان ها، دیاگرام، سکشن و غیره.
- پلان های ساختمان ویلایی
- پلان های ساختمان ویلایی
- پلان های ساختمان ویلایی
- پلان های ساختمان ویلایی
- پلان های ساختمان ویلایی
- پلان های ساختمان ویلایی
- پلان های ساختمان ویلایی
تحریریه خط معمار
نگارنده: ماریه عطایی
شرکت معماری آوگون
منبع: archdaily
تعداد بازدید: 1,265





































