
بازسازی معماری کافی شاپ فانوس سفید
بازسازی معماری کافی شاپ فانوس سفید یک پروژه بازسازی معماری با وضعیت فعلی یک کافه باغ کم هزینه است. مشکل اصلی این ساختمان که نیاز به توجه داشته است، قرار دادن یک طرح جدید در ظاهر معماری قدیمی است تا این دو با یکدیگر هماهنگ شده و همچنین هزینه بازسازی در زمان اوج همه گیری کووید به حداقل برسد. در ادامه به بررسی نحوه بازسازی کافه مورد نظر خواهیم پرداخت.
طراحی مناسب برای مخاطب متفاوت
این پروژه در منطقه شهری جدید شهر Phan Rang، درست در گوشه جاده اصلی است و تقریباً نور مستقیم خورشید را از غرب دریافت می کند. بنابراین، استودیو PT Arch برای اطمینان از نور گرفتن و همچنین دید مستقیم از بیرون، اما همچنان باید از گرمای خورشید جلوگیری کند، استودیو PT Arch تصمیم گرفت فضایی را طراحی کند که هم توپر و هم توخالی باشد. این کانسپت همچنین باید مدرن و جوان پسند و هماهنگ با تمام سنین باشد و مناسب برای موقعیت مکانی یک منطقه تفریحی در منطقه شلوغ شهر Phan Rang باشد.
آجرهای شیشه ای در نما
پنجره های شیشه ای در طبقه همکف به طور مناسب چیده شده اند و در امتداد موقعیت مناظر اصلی قرار دارند تا فعالیت های بیرون را بتوان تماشا کرد و خورشید را با یک دیوار محکم با نسبتی سازگار با کلیت ساختمان مسدود می کنند. در مرحله بعد، نمای طبقه اول با یک لایه شفاف پوشانده می شود که از آجرهای شیشه ای تشکیل شده است که در اطراف بلوک قرار دارند. این لایه مانند یک فانوس عمل می کند، در روز پر از نور می شود و در شب می درخشد. Phan Rang یک شهر کوچک پر از آفتاب و باد است، بنابراین فضای داخلی باید همیشه تا حد امکان مطبوع و خنک باشد و این معیار اصلی طراحی در طول پروژه خواهد بود.
تعیین رنگ بندی در فضای داخلی کافه
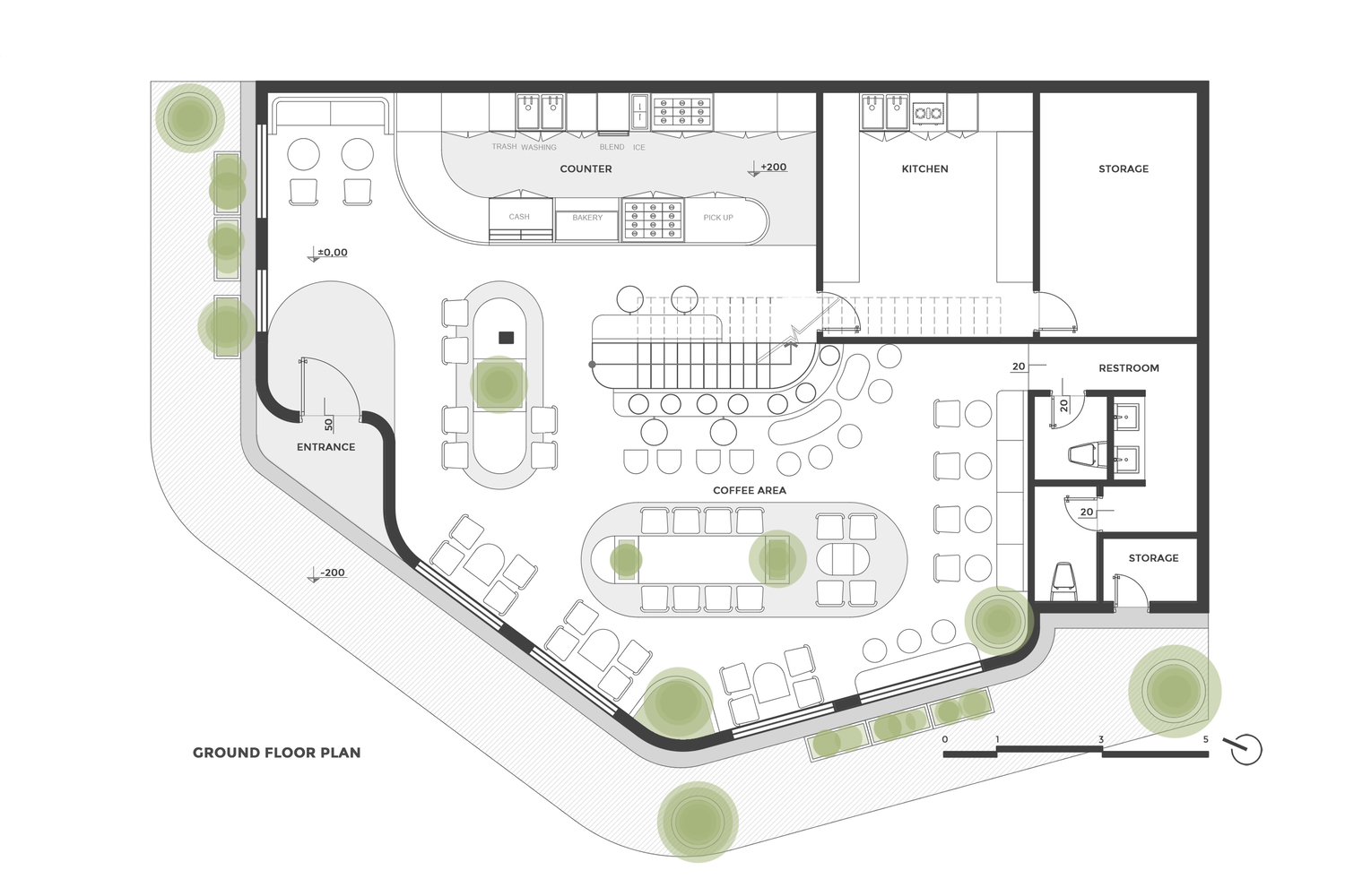
با قدم گذاشتن در داخل ساختمان، کاربران با فضای بلند و وسیع آتریوم احساس نزدیکی و راحتی خواهند کرد. با ایجاد هماهنگی بیشتر بین طبقه همکف و طبقه اول، تعامل کاربر با فضا راحت تر از همیشه احساس می شود. قسمت پیشخوان و پله ها درست روی محور اصلی که از بیرون به داخل حرکت می کند قرار خواهد گرفت تا به مشتریان کمک کند به راحتی عملکرد و جهت حرکت خود را شکل دهند.
پله همچنان از وضعیت موجود برای به حداقل رساندن هزینه ها استفاده می کند که این نیز عامل جالبی برای PT Arch Studio برای حل مشکل طراحی است. از آنجایی که پله در ۲ جهت مختلف به ۲ تقاطع تقسیم می شود، منطقه دسترسی به ۲ فضای مجزا تقسیم می شود، یکی به سمت قسمت قهوه خانه طبقه بالا و دیگری به سمت فضای بازی کودکان.
مواد اعمال شده روی چای و قهوه CoCo Cha Taiwan – White Lantern تا حد امکان به حداقل می رسد، رنگ سفید در سراسر ساختمان پخش می شود. برای افزایش کنتراست قوی، بر جزئیات مهم با تکه های فلزی یا بتونی خاکستری تیره تأکید می شود. بیشترین استفاده از رنگهای سرد برای تسکین گرما در شهر Phan Rang خواهد بود، علاوه بر این، رنگهای گرم چوب به آرامی تزئین میشوند تا گرمای روزهای زمستان را بازگردانند.
تصاویر
در ادامه خط معمار شما را به دیدن سایر تصاویر از پروژه بازسازی معماری کافی شاپ فانوس سفید دعوت می نماید.
پلان ها، دیاگرام، سکشن و غیره.
تحریریه خط معمار
نگارنده: ماریه عطایی
منبع: archdaily
تعداد بازدید: 343

























