
الهام بخش باشگاه تناسب اندام ناب / معماران Alhumaidhi
الهام بخش باشگاه تناسب اندام ناب / معماران Alhumaidhi
شرح پروژه:
این پروژه در نزدیکی جاده کمربندی ششم، نزدیک باشگاه شکار و سوارکاری واقع شده است. مساحت کل طراحی شده تقریباً ۱۳۰۰ متر مربع است. این فضا بخشی از یک مجموعه بزرگتر، متشکل از یک استخر شنای المپیک برای کودکان، ۲ زمین تنیس در فضای باز و یک زمین والیبال، به علاوه یک ساختمان ضمیمه مجزای شامل پذیرش، کمدها و مناطق مرطوب و ۲ زمین اسکواش است.
مالک در نظر داشته است، یک فضای ورزشی جدید شامل اتاق تناسب اندام گروهی، جعبه کراس فیت، منطقه خدمات غذا، سونا، کمد و فضای تعویض با دوش و توالت، اتاق مدیریت و فیزیوتراپی ایجاد کند.
بزرگترین چالش، ماهیت مسیر سریع پروژه بوده است. که توسط مالک با یک مهلت بسیار کوتاه برای اجاره به چالش کشیده شده. این بدان معنی بود که طراحی فضای جدید باید در حالی صورت می گرفت که تخریب عناصر موجود انجام می شده است. علاوه بر این، هیچ نقشه ای برای هیچ یک از ساختمان های موجود وجود نداشته (به این معنی که تیم طراحی نمیدانستند عناصر سازه ای موجود که قصد نگهداری و استفاده از آن ها را داشتند، کجا قرار دارند). بدین ترتیب اسکلت در زمانی که تخریب در حال انجام بوده است، رونمایی شده. علاوه بر آن، معماران Alhumaidhi با بودجه محدودی مواجه بوده اند (از این رو تصمیم به استفاده مجدد و ساخت بر اساس اسکلت موجود گرفته شد). بودجه همچنین حکم می کرده است که معماران Alhumaidhi فقط بتوانند یک شرکت پیمانکاری سطح پایین با تخصص و توانایی های تکمیلی محدود استخدام کنند.
تیم طراحی و ساخت با میدان متراکمی از ستون ها مواجه شدند که قبلاً زمین های اسکواش در آن قرار داشتند. آن ها تصمیم گرفتند از نیمی از این عناصر در منطقه CrossFit استفاده کنند (در نتیجه از ساختار موجود برای پشتیبانی و آویزان کردن تجهیزات مورد نیاز مانند طناب ها، حلقه ها، میله های کششی و غیره استفاده کرده اند). نیمی دیگر از آن ساختار جذب شد و در نهایت تبدیل به توالت های مردانه و زنانه، دوش ها، رختکن و فضاهای رختکن شده است. فضایی که می توانست با فضاهای تقسیم بندی شده ای که ستون های موجود ایجاد کرده بودند، مقابله کند.
در پروژه طراحی باشگاه تناسب اندام ناب معماران Alhumaidhi انتخاب مواد نیز یک انتخاب استراتژیک بوده است. آن ها استفاده خود را از پرداخت ها و مواد با کیفیت بالا عمدتاً در فضاهای محدود محوطه قفل و حمام با استفاده از وسایل با کیفیت بالا، سرامیک دال بزرگ، شیشه، اتصالات نور فلاش و جزئیات و ترازهای دقیق متمرکز کردند.
تیم طراحی این احساس را داشتند که مشتریان با ارزش مجموعه ناب در مورد این فضاهای آگاهانه بهداشتی بیشتر از ماهیت خشن و سخت فضاهای تمرینی، انتظار چنین رویکردی را دارند. همچنین، این حدود ۲۰٪ از کل فضا را تشکیل می دهد و بنابراین می تواند باعث افزایش بودجه شود – ۸۰٪ مابقی با ظاهری کاملا خام (با چوب به عنوان ماده اصلی اصلاح شده) و نازک کاری دقیق که بار را کاهش می دهدتوسط تیم پیمانکار (بی تجربه) به پایان رسیده است. خدمات برای ظاهر صنعتی تر و نگهداری و دسترسی آسان در معرض دید قرار می گیرند.
علاوه بر این، چوب بازیافت شده و ظاهر خام سالن به آن اجازه می دهد تا به اصطلاح به زیبایی کهنه شود و تسلیم ضرب و شتم روزانه کاربران به همان شیوه ای که یک ماده تمیز به پایان می رسد، نمیرسد. و ۳ سال بعد فضا دقیقاً همان چیزی است که در روز افتتاحیه بوده است. از سوی دیگر، هر گونه تعمیر می تواند با حداقل هزینه انجام شود، زیرا چوب را می توان در هر ضایعاتی پیدا کرد.
موقعیت پروژه در کنار یک فضای استخر زیبا و یک مسیر مسابقه با یک زمین گلف در داخل آن دیکته می کند که نماها در سراسر محیط حفظ شده و با به حداکثر رساندن نمای شیشه ای کشویی که لبه بیرونی فضاهای داخلی را تشکیل می دهد، برجسته می شود.
نتیجه خام و ساده بود. بافت های ناهموار طبیعی دیوارها و پیش خوان های چوبی بازسازی شده به زیبایی با پوشش سفید صاف سقف فلزی و کانالهای AC تضاد داشتند. سایبان دهانه بزرگ بالای استخر، (که کاملاً از تخته های چوبی بازسازی شده ساخته شده بود) نه تنها استخر را سایه می انداخت، بلکه از تابش خیره کننده و افزایش گرما در نمای شیشه ای اصلی سالن ورزشی نیز جلوگیری می کرد.
در ادامه خط معمار شما را به دیدن سایر تصاویر پروژه باشگاه تناسب اندام ناب دعوت می نماید.
- بازسازی مجموعه ورزشی
- بازسازی مجموعه ورزشی
- بازسازی مجموعه ورزشی
- بازسازی مجموعه ورزشی
- بازسازی مجموعه ورزشی
- بازسازی مجموعه ورزشی
- بازسازی مجموعه ورزشی
- طراحی دکوراسیون داخلی دفتر کار
- بازسازی مجموعه ورزشی
- بازسازی مجموعه ورزشی
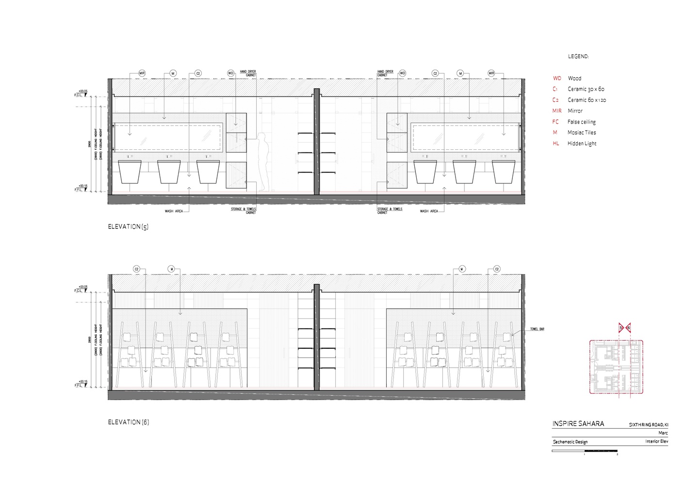
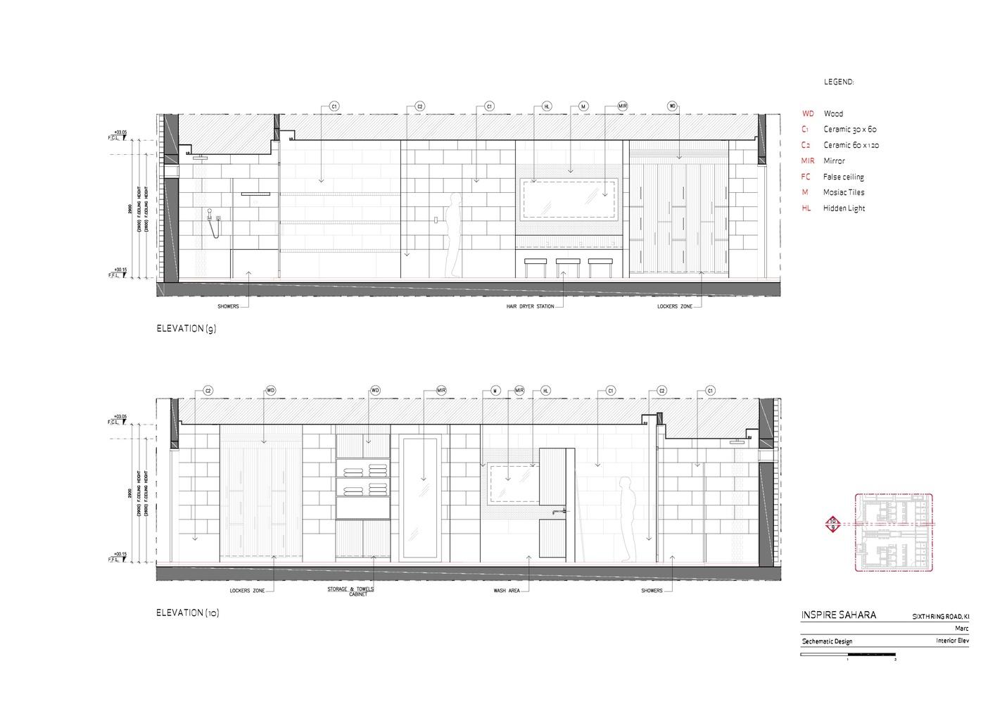
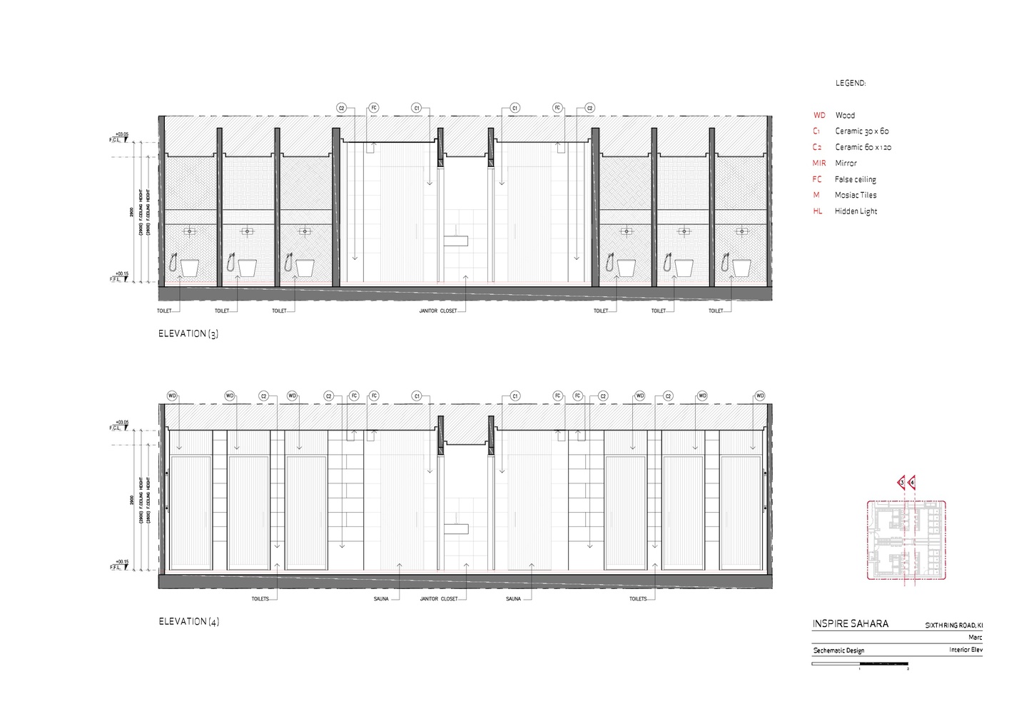
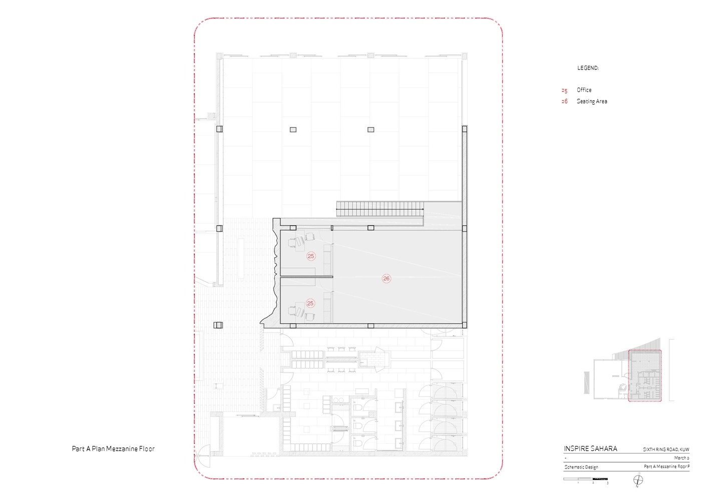
- پلان های مجموعه ورزشی ناب
- بازسازی مجموعه ورزشی
پلان ها، دیاگرام، سکشن و غیره.
- پلان های مجموعه ورزشی ناب
- پلان های مجموعه ورزشی ناب
- پلان های مجموعه ورزشی ناب
- پلان های مجموعه ورزشی ناب
- پلان های مجموعه ورزشی ناب
- پلان های مجموعه ورزشی ناب
- پلان های مجموعه ورزشی ناب
- پلان های مجموعه ورزشی ناب
- پلان های مجموعه ورزشی ناب
- پلان های مجموعه ورزشی ناب
- پلان های مجموعه ورزشی ناب
- پلان های مجموعه ورزشی ناب
- پلان های مجموعه ورزشی ناب
- پلان های مجموعه ورزشی ناب
- پلان های مجموعه ورزشی ناب
- پلان های مجموعه ورزشی ناب
تحریریه خط معمار
نگارنده: ماریه عطایی
شرکت معماری آوگون
منبع: www.archdaily.com
تعداد بازدید: 199
































